EasyManua.ls Logo

Alpha-InnoTec L12 SPLIT - Technical Specifications - Module and Tank; Outdoor Module L8;L12 SPLIT Specs; Tank Specifications (EHZK, WWS)

Alpha-InnoTec L12 SPLIT
112 pages
Print Icon
To Next Page IconTo Next Page
To Next Page IconTo Next Page
To Previous Page IconTo Previous Page
To Previous Page IconTo Previous Page
Loading...
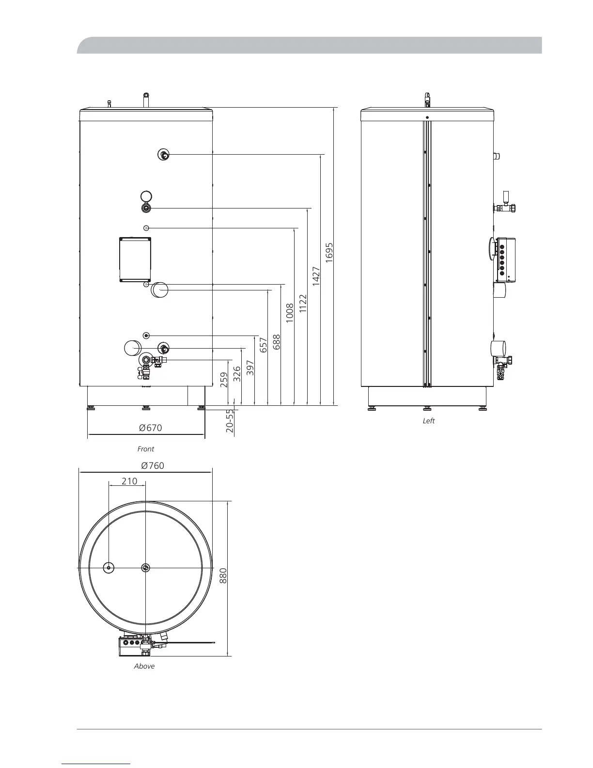
Water heater WWS 500 SPLIT
Ø670
259
326
397
657
688
1008
1122
1427
1695
20-55
Ø760
210
880
Above
Front
Left
89SPLIT
Miscellaneous
Dimensions

Table of Contents

Related product manuals