EasyManua.ls Logo

Alpha-InnoTec L12 SPLIT - Electrical Installation Overview; General Electrical Notes; Electrical Components Identification; Electrical Circuit Principle Diagram

Alpha-InnoTec L12 SPLIT
112 pages
Print Icon
To Next Page IconTo Next Page
To Next Page IconTo Next Page
To Previous Page IconTo Previous Page
To Previous Page IconTo Previous Page
Loading...
Electrical installation
General
HM 8-12 SPLIT must be installed via a circuit breaker with
a minimum breaking gap of 3mm.
Other electrical equipment, except the outdoor sensors,
current sensors and outdoor module L8 SPLIT/L12 SPLIT
is already connected at the factory.
Disconnect the indoor module HM 8-12 SPLIT and out-
door module L8 SPLIT/L12 SPLIT before insulation testing
the house wiring.
For fuse ratings, see technical data, “Fuse protection”.
If the building is equipped with an earth-fault breaker,
HM 8-12 SPLIT should be equipped with a separate one.
Connection must not be carried out without the permis-
sion of the electricity supplier and under the supervision
of a qualified electrician.
5.G2.5 mm
2
cable must be used for the connection
between HM 8-12 SPLIT and L8 SPLIT/L12 SPLIT.
Cables must be routed so that they are not damaged by
metal edges or trapped by panels.
L8 SPLIT/L12 SPLIT is equipped with a single phase
compressor. This means that phase L3 is loaded with up
to 15 A during compressor operation.
NOTE
Electrical installation and service must be carried out
under the supervision of a qualified electrician. Elec-
trical installation and wiring must be carried out in
accordance with the stipulations in force.
NOTE
The switch (SF1) must not be moved to “1” or
until the boiler has been filled with water. The circu-
lation pump and immersion heater may be damaged.
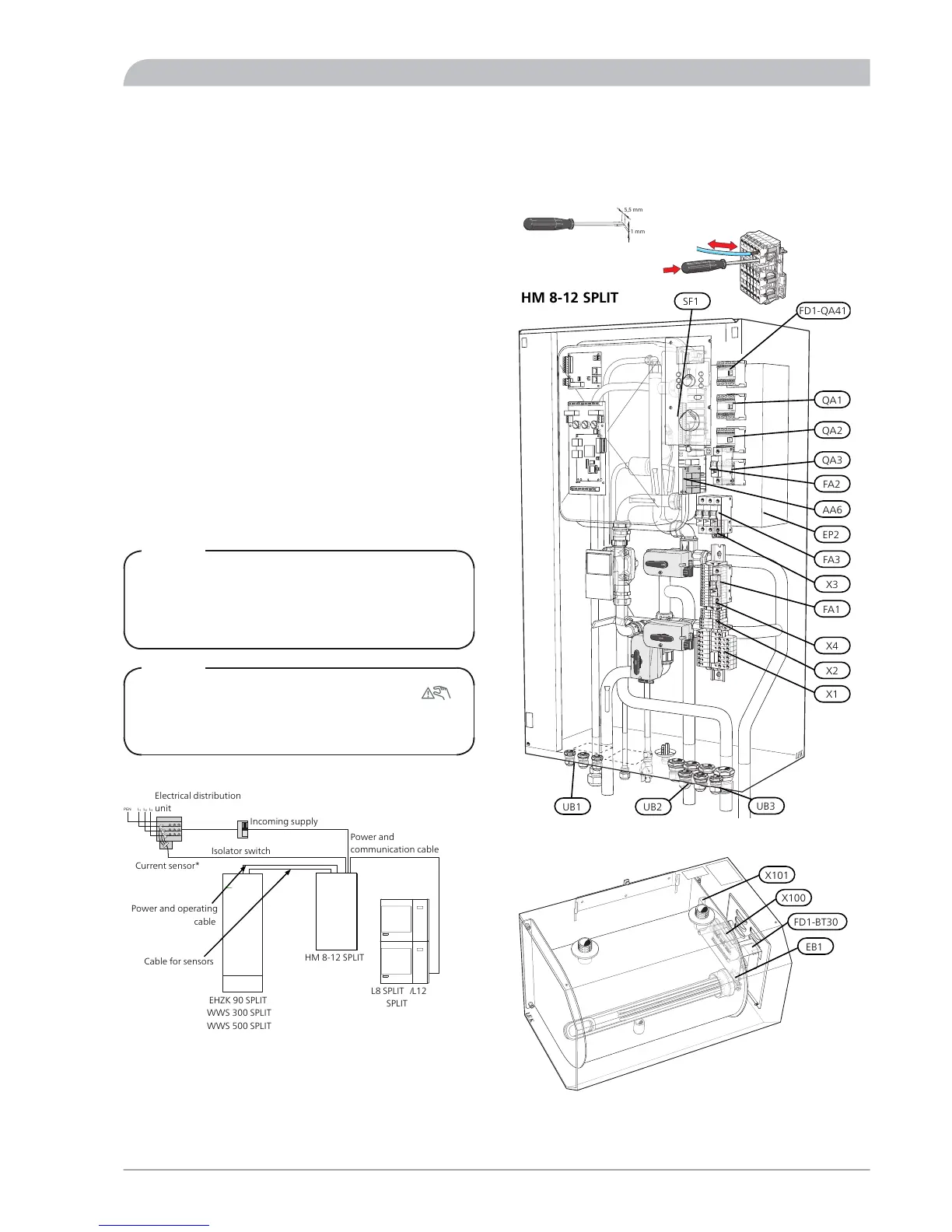
Principle diagram, electrical installation
LPEN
1
L
2
L
3
Electrical distribution
unit
Isolator switch
Current sensor*
Incoming supply
Power and
communication cable
EHZK 90 SPLIT
WWS 300 SPLIT
WWS 500 SPLIT
HM 8-12 SPLIT
Power and operating
cable
Cable for sensors
L8 SPLIT /L12
SPLIT
* Only in a 3-phase installation.
Electrical components
L
E
K
1 mm
5,5 mm
L
E
K
1 mm
5,5 mm
L
E
K
EP2
AA6
FA2
FD1-QA41
X1
X2
X4
FA1
X3
UB2
UB3
UB1
SF1
HM 8-12 SPLIT
FA3
QA3
QA2
QA1
EHZK 90 SPLIT
LEK
X101
X100
FD1-BT30
EB1
33SPLIT
For the Installer
Electrical installation

Table of Contents

Related product manuals