EasyManua.ls Logo

Alpha-InnoTec L12 SPLIT - Technical Specifications - Performance Data; Performance HM 8-12 SPLIT and L8 SPLIT

Alpha-InnoTec L12 SPLIT
112 pages
Print Icon
To Next Page IconTo Next Page
To Next Page IconTo Next Page
To Previous Page IconTo Previous Page
To Previous Page IconTo Previous Page
Loading...
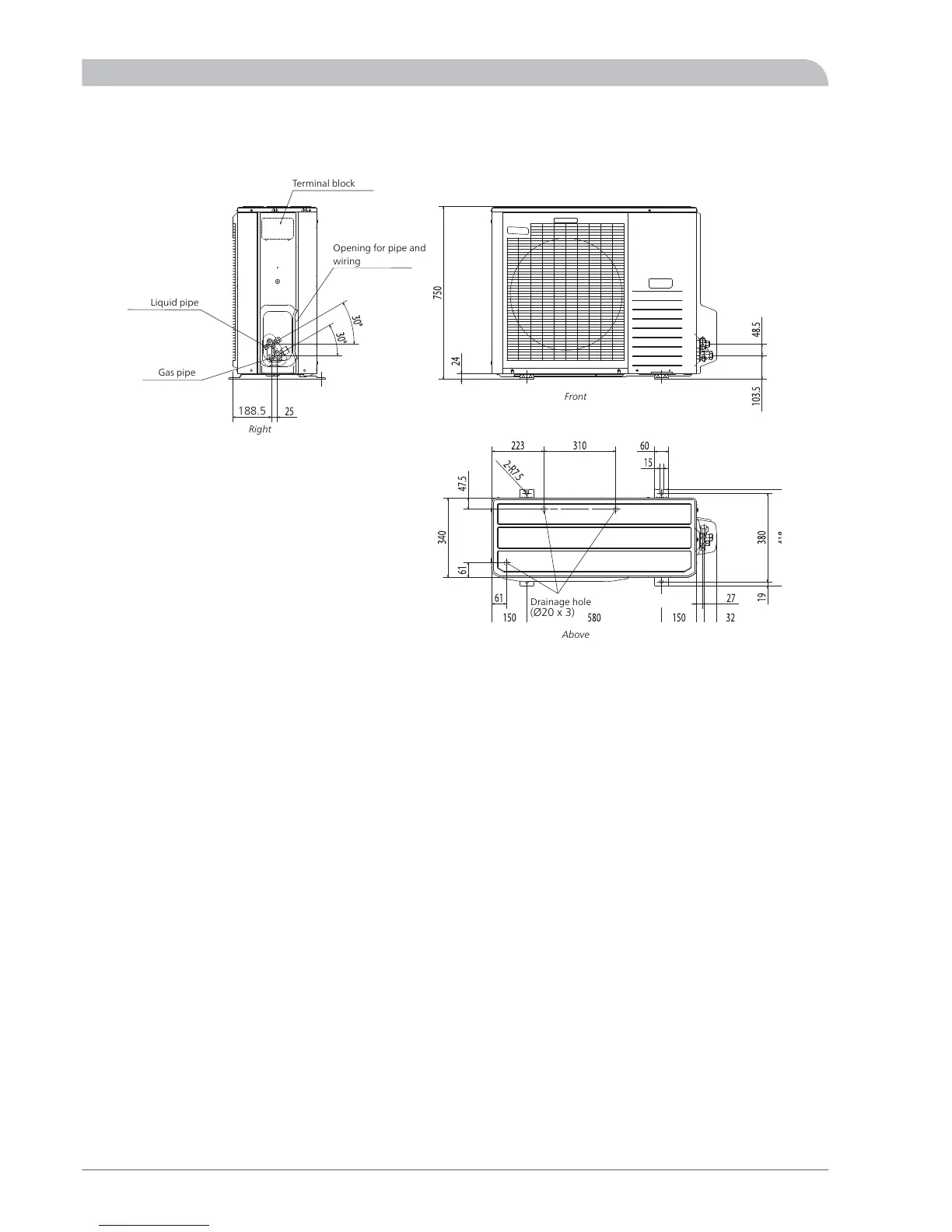
Outdoor unit
L8 SPLIT
Öppning för rör
och kablage
Vätskeledning
Gasledning
Dräneringshål
(Ø20 x 3)
Anslutningsplint
188.5
Gas pipe
Liquid pipe
Opening for pipe and
wiring
Drainage hole
Terminal block
Front
Above
Right
SPLIT90
Miscellaneous
Dimensions

Table of Contents

Related product manuals