EasyManua.ls Logo

Alpha 41 532 05 - Page 12

Alpha 41 532 05
52 pages
Print Icon
To Next Page IconTo Next Page
To Next Page IconTo Next Page
To Previous Page IconTo Previous Page
To Previous Page IconTo Previous Page
Loading...
12
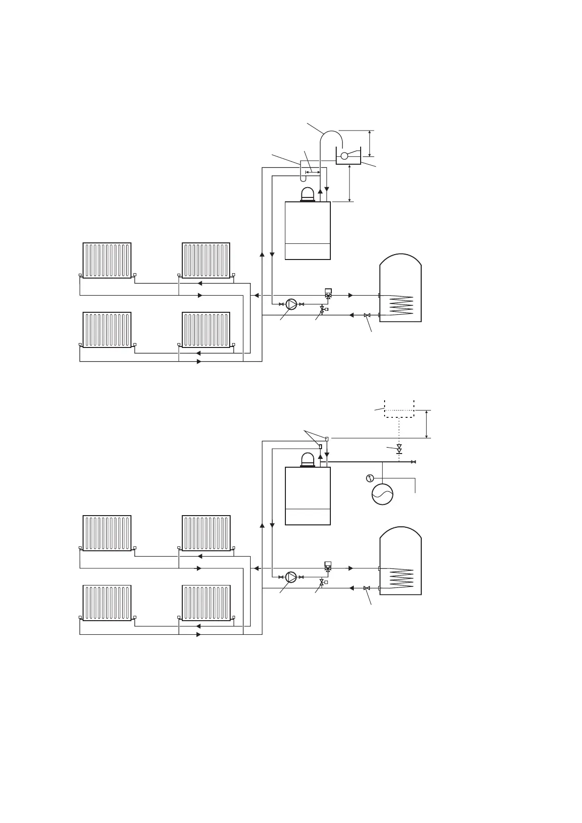
3.7 CENTRAL HEATING SYSTEM - Fig. 2.7 and 2.8
The boiler is designed for use in an open or (if the alpha sealed system kit is used) sealed central heating system in accordance
with the requirements of BS 5449 and BS 6798.
Alpha CD13R, 18R, 24R - General Boiler Information
Fig. 2.7 - Open system with Y-Plan
Fig. 2.8 - Sealed system with Y-Plan
Pump
Boiler
DHW storage
cylinder
Mid position
3-port valve
Automatic
by-pass valve
Balancing
valve
Manual air vents
Pressure
gauge
Expansion
vessel
Discharge
pipe
Double
check valve
Filling point
Above highest
point of system
Make-up
vessel
Boiler
150mm max
1000mm min height
Feed and
expansion tank
Vent (22mm min)
Cold feed
(15mm min)
Pump
DHW storage
cylinder
Mid position
3-port valve
Automatic
by-pass valve
Balancing
valve
450mm min height
3.8 FILLING THE OPEN VENTED CENTRAL HEATING SYSTEM
A minimum head of 1 m is required between the boiler/pump and the feed and expansion tank.
The boiler must be supplied from an unrestricted water supply taken from a feed and expansion cistern situated at a
maximum height of 27 m above the boiler.
The cold feed must be 15 mm minimum size. The vent should be 22 mm in size, rise continuously and be unrestricted.
It is important that the relative positions of the pump, cold feed and open vents are as shown in Fig. 2.7.
The domestict hot water cylinder must be of the fully indirect coil type.

Related product manuals