EasyManua.ls Logo

Alpha E-Tec 28 - Page 22

Alpha E-Tec 28
64 pages
Print Icon
To Next Page IconTo Next Page
To Next Page IconTo Next Page
To Previous Page IconTo Previous Page
To Previous Page IconTo Previous Page
Loading...
22
Alpha E-Tec 28 and 33 - Installation
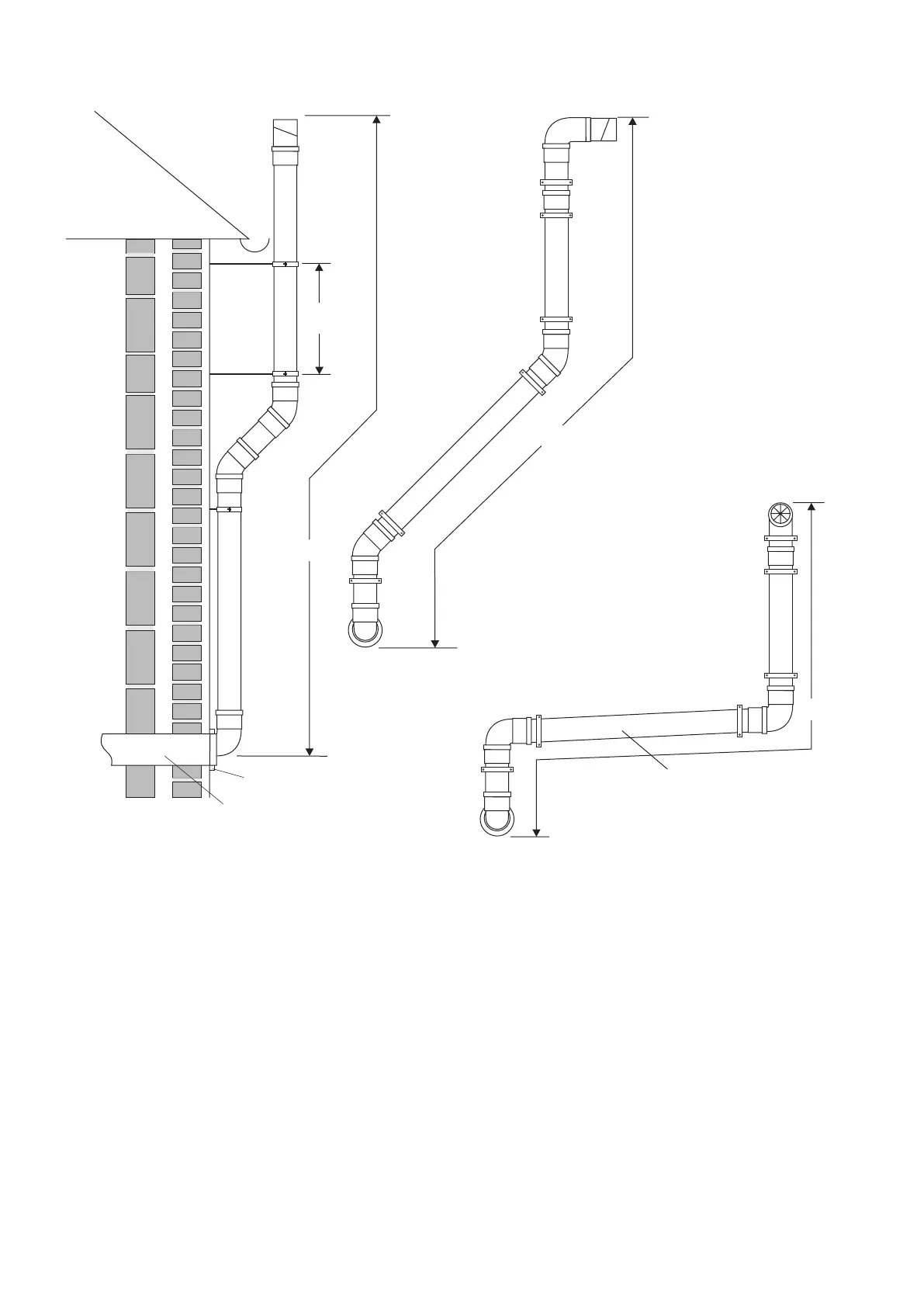
PM length = C + (1 x 93° bend = 1.3 m) + (2 x 45° bends = 1.8 m)
C
Min.
400 mm
CD Easy-Flue
Flue sealing collar
Terminal end section
from CD Easy-Flue
PM length = C + (2 x 93° bend = 2.6 m) + (2 x 45° bends = 1.8 m)
C
Terminal end section
from CD Easy-Flue
PM length = C + (4 x 93° bend = 5.2 m)
C
Terminal end section
from CD Easy-Flue
Ensure there is a slope of approximately
3° back towards the Easy-Flue
Fig. 4.13
Note: The equivalent horizontal flue assembly length + the equivalent plume management length (PM length) must not
exceed the maximum flue length stated for each boiler, i.e.
E-Tec boilers - the maximum equivalent flue length must not exceed 12 metres.
Note:
1. Ensure each joint is
secured with the screw
supplied.
2. Ensure there is always
a slight slope towards
the CD Easy-Flue so
that there is no part
of the pipework where
condensate will collect.

Other manuals for Alpha E-Tec 28

Related product manuals