EasyManua.ls Logo

Alpha E-Tec 28 - Wiring Diagram

Alpha E-Tec 28
64 pages
Print Icon
To Next Page IconTo Next Page
To Next Page IconTo Next Page
To Previous Page IconTo Previous Page
To Previous Page IconTo Previous Page
Loading...
45
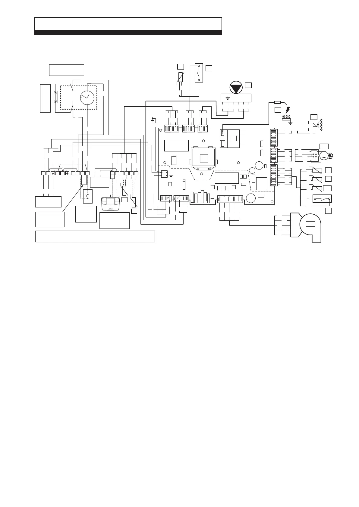
8.1 ILLUSTRATED WIRING DIAGRAM
8 WIRING DIAGRAM
Alpha E-Tec 28 and 33 - Wiring Diagrams
Colour Code
Bk ......Black
Bl .......Blue
Br ....... Brown
G ........Green
Gy ...... Grey
G/Y ....Green/Yellow
Or.......Orange
P ........Purple
R ........ Red
V ........Violet
W .......White
Y ........Yellow
Component identification
B1 ............Flow sensor
B2 ............DHW sensor
B4 ............External sensor (optional)
B5 ............Return sensor
B9 ............DHW inlet sensor (optional)
B10 ..........Flue sensor
E3 ............Ignition and detection electrode
M1............Boiler pump
M20..........Fan
M30..........3-way valve motor
S4 ............DHW flow switch
S5 ............System pressure switch
T1 ............Transformer
T2 ............Ignition transformer
Y1 ............Gas valve
Low voltage
connections
220 V
connections
M1
Y
BrG/Y
Bk
PWM
GND
FEED
BlBr
LN
B2
S4
GGY
GYG
Y1
Y
R
Br
Br
Bk
Bl
M
E3
M30
Br
Y
Bk
Br
R
Bl
6
1
9
1
W
P
Or
R
W
Or
P
R
W
W
P
P
Fuse
3.15 AF
-Vcc
HS
+UB
GND
+Vcc
M20
Bl
W
R
Bk
Br
Br R
Bl
W
Bk
1
5
X4
J2 J3
X2
X3
X1
X6
X5
161
5
4
1
7
1
41
XF1
T2
Bl
Br
Bk
J1
3
1
Bl
R
Br
Bk
YBr
Gy
Gy
G
G
Bk
R
Y
Y
Or
Or
P
P
B1
B5
B10
R
W
R
W
S5
Or
Or
G/Y
G/Y
G/Y
3
1
2
4
Programmer clock
(optional)
Remove link to
connect clock
R
Bl
Br
R
R
Mains Supply
220 V ~ 50 Hz
Remove link to
connect 220 V
room thermostat
Room
thermostat
(optional)
Alpha
Climatic Control
(optional)
When an Alpha Climatic control is connected to terminals 41 and 44
remove the links between terminal blocks 1 and 2
B4
B9
Br
Bl
Bk
Bl
Br
R
Or
Y
Bk Or Y
G/Y
Br
Bl G/Y
L
N
A
B
40
44
41
38
1
2
5
6 39 38 48
For testing
only
Bk
R
Chassis
earth
Bk
Bl
R
Y
Y

Other manuals for Alpha E-Tec 28

Related product manuals