EasyManua.ls Logo

Alpha Evoke 33NX - Page 9

Alpha Evoke 33NX
64 pages
Print Icon
To Next Page IconTo Next Page
To Next Page IconTo Next Page
To Previous Page IconTo Previous Page
To Previous Page IconTo Previous Page
Loading...
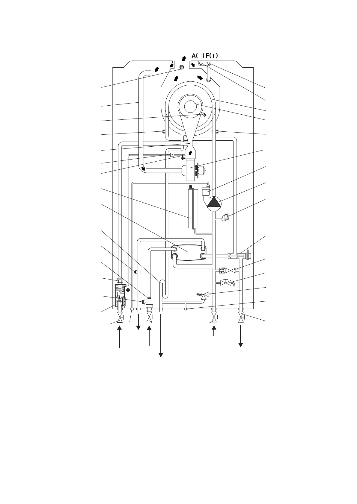
3.8 BOILER SCHEMATIC
Fig. 3.4
Alpha Evoke 28NX and 33NX - Technical Data
Gas
Condensate discharge
and expansion relief
Primary
Heating
return
Primary
Heating flow
Domestic
hot water
outlet
Cold mains
water inlet
1
2
3
4
5
6
7
8
9
10
11
12
13
14
15
16
17
18
19
20
21
22
23
24
25
26
27
28
29
30313233
34
1 Gas valve
2 DHW flow switch
3 Gas injector
4 Flow regulator
5 DHW temperature sensor
6 Condensate trap
7 DHW plate heat exchanger
8 Expansion vessel
9 Venturi positive pressure point (+)
10 Pressure signal vent fitting
11 Venturi
12 Primary flow temperature sensor
13 Ignition/sensing electrode
14 Air supply pipe
15 Flue temperature sensor
16 Flue test pressure point (+)
17 Air test point (-)
18 Burner
19 Primary return sensor
20 Fan
21 Automatic air vent
22 Boiler pump
23 Primary pressure switch
24 Diverter valve
25 By-pass
26 Drain point
27 3 bar safety valve
28 Safety valve indicator
29 Heating flow isolation valve
30 Heating return isolation valve
31 Cold mains isolation valve
32 Air vent drain valve (do not block)
33 Gas isolation valve
34 Primary heat exchanger
9

Related product manuals