EasyManua.ls Logo

Alpine TDA-7592R - Connection

Alpine TDA-7592R
38 pages
Print Icon
To Next Page IconTo Next Page
To Next Page IconTo Next Page
To Previous Page IconTo Previous Page
To Previous Page IconTo Previous Page
Loading...
34-EN
Ai-NET
NORM EQ/DIV
/
,
+
-
:
(
&
%
$
#
"
!
9
6
5
4
3
1
2
7
)
8
~
;
>
>
<
>
=
.
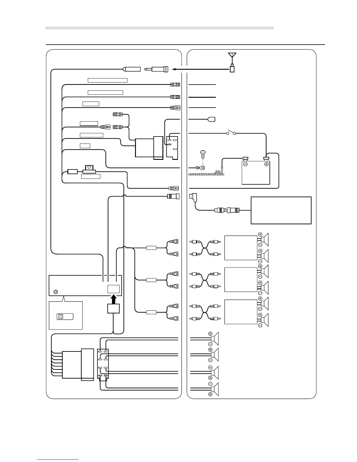
Connection
Installation and Connections
ISO Antenna Plug
Antenna
To vehicle phone
To amplifier or equalizer
To power antenna
Battery
ISO Antenna Convertor Plug
To the instrument cluster
illumination lead
Rear Left
Front Left
Front Right
Rear Right
Speakers
Amplifier
Amplifier
Speakers
Front
Rear
CD Changer
(Ai-NET)
(Sold Separately)
Ignition Key
choke
coil
Amplifier
Subwoofers
(Pink/Black) AUDIO INTERRUPT IN
(Blue/White) REMOTE TURN-ON
(Red) IGNITION
(Black) GND
(Blue) POWER ANT
(Yellow) BATTERY
(Orange) DIMMER
(Green)
(Green/Black)
(White)
(White/Black)
(Gray/Black)
(Gray)
(Violet/Black)
(Violet)

Table of Contents

Related product manuals