EasyManua.ls Logo

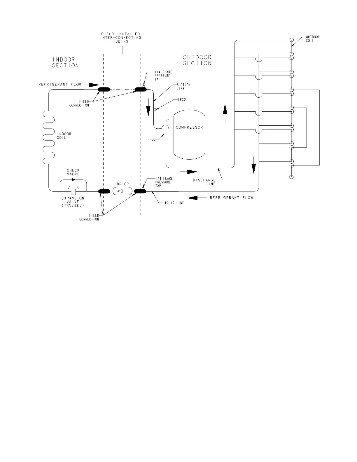
Ameristar M4AC6 - Refrigeration Circuit for 6048 Model

Default Icon
24 pages
Print Icon
To Next Page IconTo Next Page
To Next Page IconTo Next Page
To Previous Page IconTo Previous Page
To Previous Page IconTo Previous Page
Loading...
88-M4PW003-1B-EN 23
6048
Printed from D159175

Related product manuals