EasyManua.ls Logo

Anca TX7+ - Page 8

Default Icon
22 pages
Print Icon
To Next Page IconTo Next Page
To Next Page IconTo Next Page
To Previous Page IconTo Previous Page
To Previous Page IconTo Previous Page
Loading...
TX7+现场准备手册 TX7+ Site Preparation Manual
8
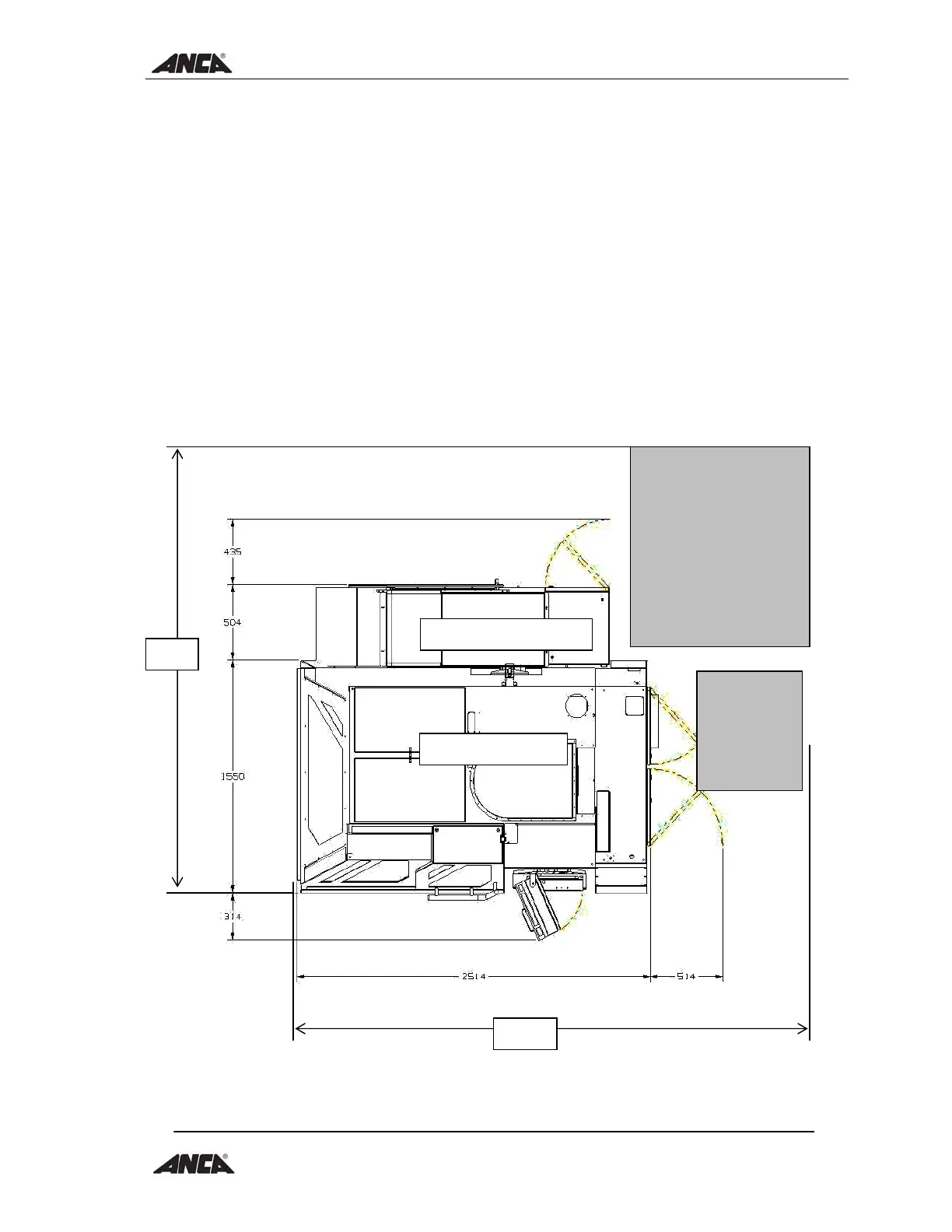
一般而言,需为机床+上料机+附件+标准冷却液过滤系统预留最小为 3600 x 3600
毫米的空间。
In general, prepare minimum 3600 x 3600mm space for
machine+loader+accessories+standard coolant filter system.
下图(图 1)显示了 TX7+的地面尺寸,所有尺寸都以毫米标识。
Below (Fig. 1) is a diagram of the floor size of the TX7+, with all
dimensions expressed in mm.
如需附加外接的选购冷却系统,请与 ANCA 分公司联系有关细节。
For an external coolant system (optional), please contact your ANCA
branch for details.
1TX7+的平面图
Figure 1. Floor plan of TX7+
上料机
L
OADER
TX7+
如有需要,
机床变压器
M/C
Transformer
if required
ANCA
标准冷却过滤系
ANCA
Standard
Coolant
Filter
System
3600
3600