EasyManua.ls Logo

Anybus X-gateway - Appendix A: Technical Data

Anybus X-gateway
20 pages
Print Icon
To Next Page IconTo Next Page
To Next Page IconTo Next Page
To Previous Page IconTo Previous Page
To Previous Page IconTo Previous Page
Loading...
Appendix A: Technical Data 15 (18)
A Technical Data
Technical Specifications
Model name Anybus X-gateway
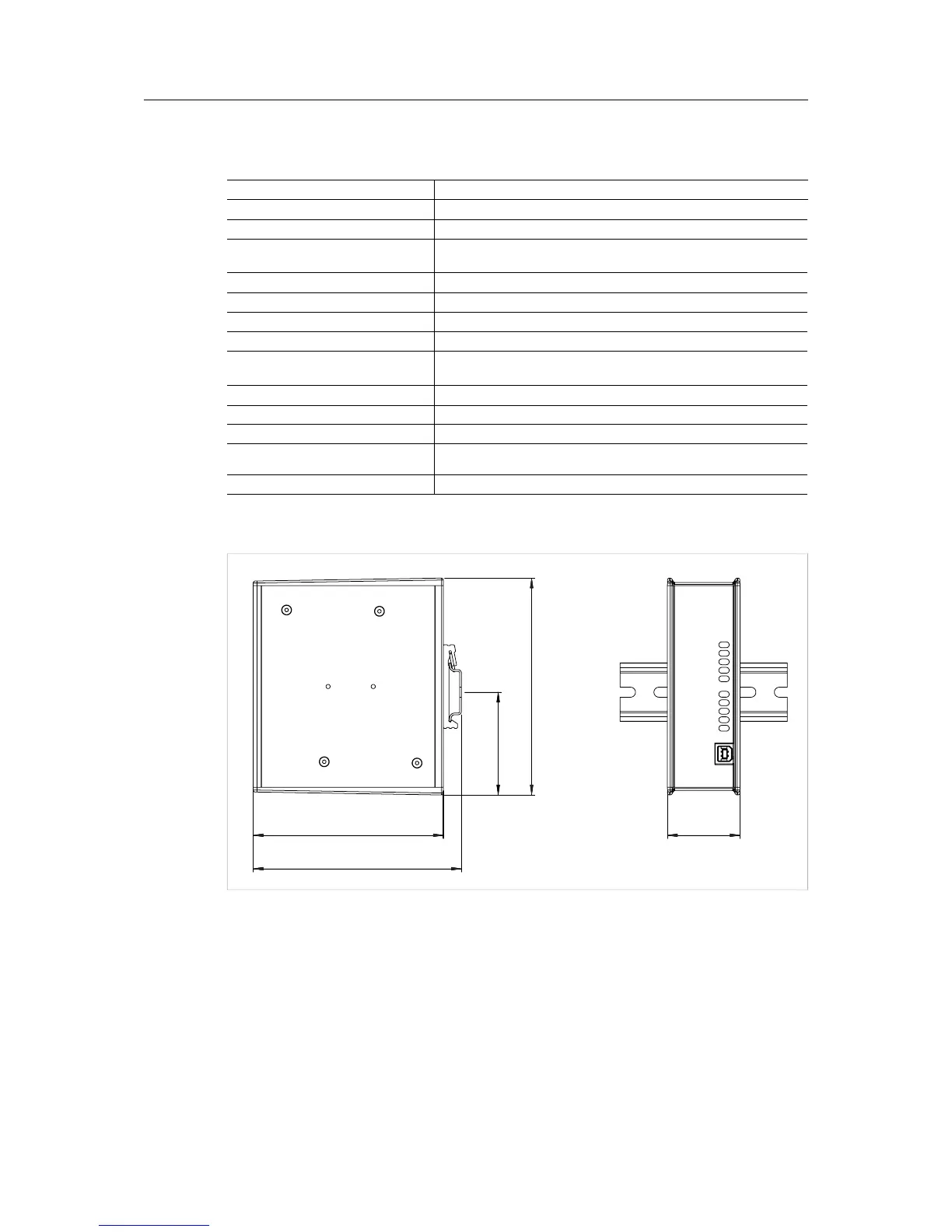
Dimensions (L x W x H) 114 x 44 x 127 mm
Weight 400 g
Operating temperature -25 to +65 °C (IEC 60068-2-1 and IEC 60068-2-2)
(max. +50 °C for fibre optic interfaces)
Storage temperature -40 to +85 °C (IEC 60068-2-1 and IEC 60068-2-2)
Humidity range 5–95 % RH, non-condensing (IEC 60068-2-30)
Pressure range 85–105 kPa
Power supply 24 V ±20 % DC regulated power source
Current consumption Typical: 200 mA @ 24 VDC
Maximum: 400 mA @ 24 VDC
Configuration port USB (USB to CAN cable not included)
Galvanic isolation Yes, on both network sides
Mechanical rating IP20, NEMA rating 1
Mounting DIN rail (EN 50022)
Network shield conductance via DIN rail
Certifications CE,
C
UL
US
, ATEX/Haz.Loc.
All measurements are in millimeters.
Fig. 13 Anybus X-gateway dimensions
Anybus
®
X-gateway
User Manual HMSI-27-262 3.0

Other manuals for Anybus X-gateway