EasyManua.ls Logo

Aprimatic T2E - 1 Description; Specifications Techniques

Aprimatic T2E
Print Icon
To Next Page IconTo Next Page
To Next Page IconTo Next Page
To Previous Page IconTo Previous Page
To Previous Page IconTo Previous Page
Loading...
1. DESCRIPTION
Dispositif doté d’un microprocesseur Aprimatic pour l’actionnement d’un moteur de 680
Watts de puissance maxi.
La version T22 du dispositif est fournie d’un module radiorécepteur 433,92 MHz incorporé.
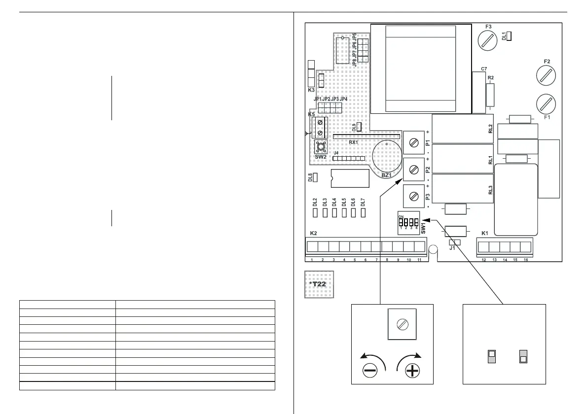
1.1 SCHEMA FONCTIONNEL DU DISPOSTIF
DL1DL1
DL1DL1
DL1 Led tension de réseau
DL5DL5
DL5DL5
DL5 Led
sécurité
additionnel entrée avec homme
présent
DL2DL2
DL2DL2
DL2 Led départ
DL6DL6
DL6DL6
DL6 Led fn de course ouverture
DL3DL3
DL3DL3
DL3 Led arrêt
DL7DL7
DL7DL7
DL7 Led fin de course fermeture
DL4DL4
DL4DL4
DL4 Led photocellule
K1K1
K1K1
K1 Bornier de puissance
K2K2
K2K2
K2 Bornier signaux/commandes
K3K3
K3K3
K3 Connecteur carte décodage lecteur de cartes magnétiques et clavier codé, ou
connecteur radio recepteur d’APRIMATIC (seulement pour T2E)
J1J1
J1J1
J1 Connecteur carte ADD/ON anti-écrasement (AUTOREVERSE CARD)
P1P1
P1P1
P1 Trimmer temps de pause
P2P2
P2P2
P2 Trimmer intensité frein
P3P3
P3P3
P3 Trimmer réglage couple
SW1SW1
SW1SW1
SW1 = Commutateur DIP S1-4
* SEULEMENT POUR T22
DL8DL8
DL8DL8
DL8 Led départ par radio
DL9DL9
DL9DL9
DL9 Led récepteur Memory System
K5K5
K5K5
K5 Bornier antenne
J4J4
J4J4
J4 Connecteur module mémoire récepteur
JP1JP1
JP1JP1
JP1;
JP2JP2
JP2JP2
JP2 Choix logique de fonctionnement canaux radio
JP3JP3
JP3JP3
JP3;
JP4JP4
JP4JP4
JP4 Choix ligne touches d’activation
JP5-8JP5-8
JP5-8JP5-8
JP5-8 Cavalier sélection canaux (connexion CA41)
SW2SW2
SW2SW2
SW2 Touche de programmation récepteur
BZ1BZ1
BZ1BZ1
BZ1 Avertisseur sonore
1.2 SPECIFICATIONS TECHNIQUES
Tension d’alimentation 230 VCA (+6% - 10%)
Fréquence 50HZ
Fusible de protection F1 F5A intervention rapide pour protection moteurs
Consommation de l’appareil au repos 15W
Consommation de l’appareil max. 680W
Température de service -20°C +70°C
Température d’emmagasinage -40°C +85°C
Humidité relative 90% max. (sans condensation)
Degré de protection IP55 (uniquement en boîtier IP55)
F2 F200mA interv. rapide pour protect. primaire transformateur
F3 F500mA intervention rapide pour protection accessoires 24V
(moteurs et accessoires connectés et en fonctionnement)
Fusible de protection
Fusible de protection
ajustage du trimmer
trimmer
positions du DIP SWITCH
ON OFF

Table of Contents

Related product manuals