EasyManua.ls Logo

Aqua PH-02713 - 8. Wiring Diagram

Default Icon
52 pages
Print Icon
To Next Page IconTo Next Page
To Next Page IconTo Next Page
To Previous Page IconTo Previous Page
To Previous Page IconTo Previous Page
Loading...
AIR TO WATER POOL HEAT PUMP VERTICLE PH SERIES
31/ 52 VERSION 19 , RELEASE 29th June 2020
31
/
52
E25
Water level switch broken
E79
4# Exhaust temp. sensor broken
E26
Water inlet temp.is too high
E89
3# Suction temp. sensor broken
E27
1# Outlet water sensor broken
E90
4# Suction temp. sensor broken
E28
2# Outlet water sensor broken
E95
3# compressor overcurrent
E29
1# Suction temp. sensor broken
E96
4# compressor overcurrent
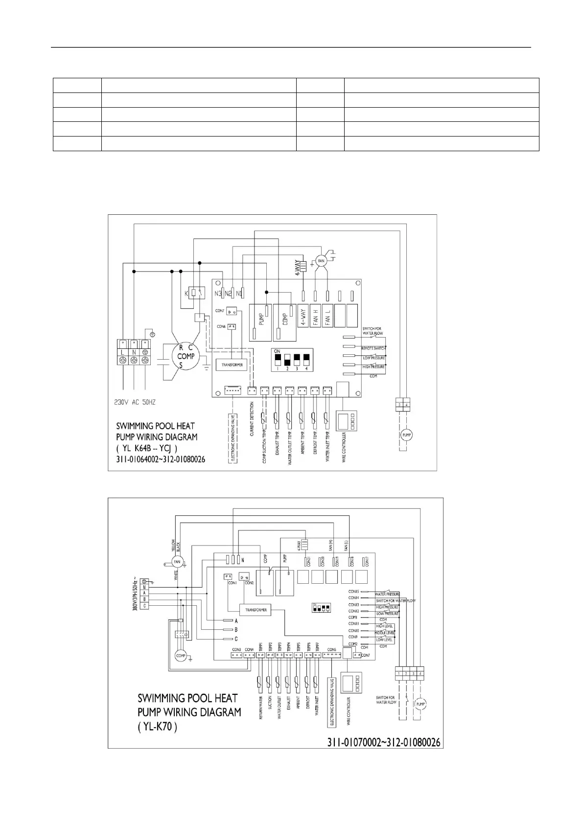
8. WIRING DIAGRAM
Applicable Model: PH-02620 PH-02625
Applicable model: PH-02630 PH-02640 PH-02650 PH-02660

Related product manuals