EasyManua.ls Logo

Aqua PH-02713 - Page 36

Default Icon
52 pages
Print Icon
To Next Page IconTo Next Page
To Next Page IconTo Next Page
To Previous Page IconTo Previous Page
To Previous Page IconTo Previous Page
Loading...
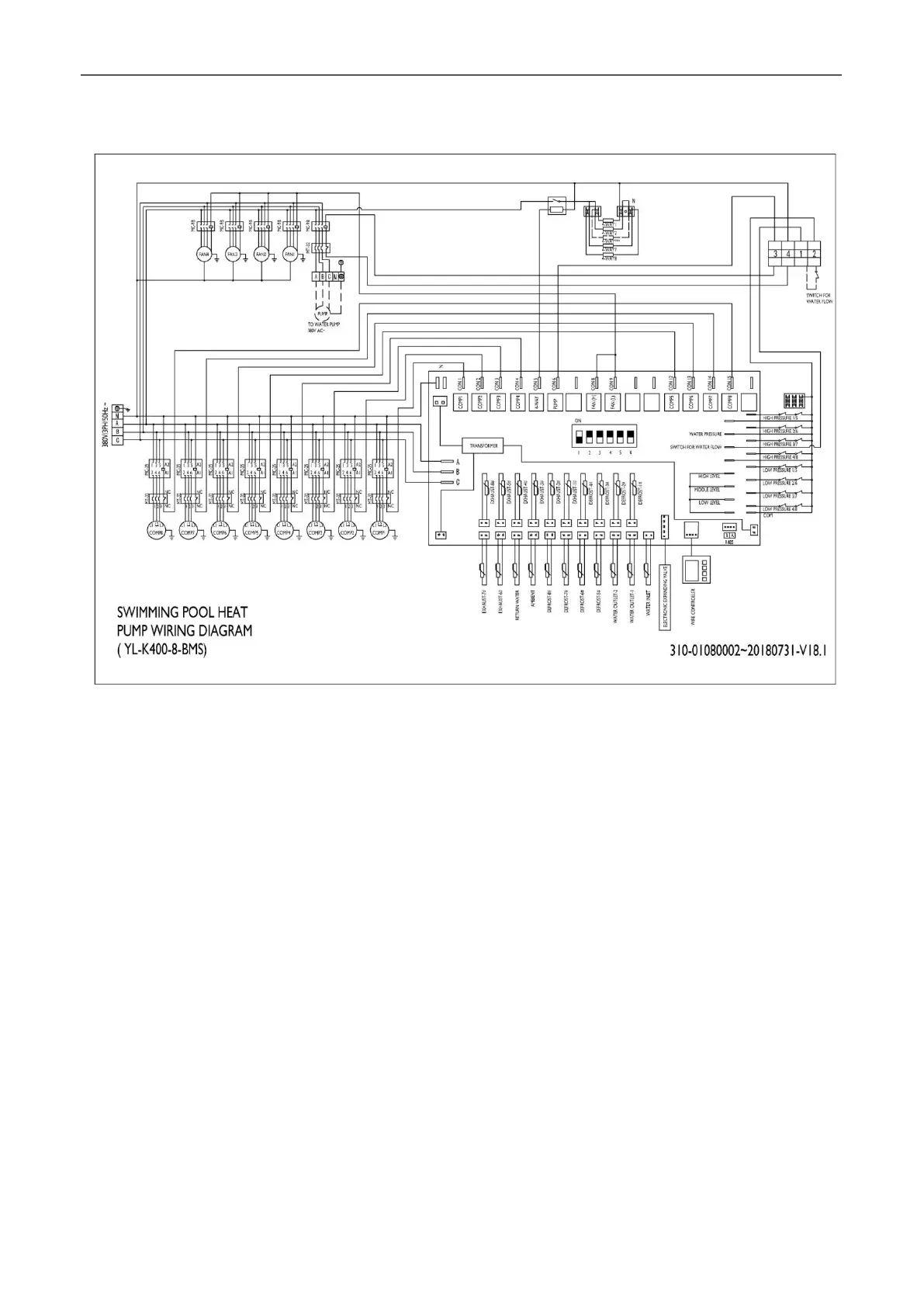
AIR TO WATER POOL HEAT PUMP VERTICLE PH SERIES
36/ 52 VERSION 19 , RELEASE 29th June 2020
36
52
Applicable model: PH -02770 PH-02780

Related product manuals