EasyManua.ls Logo

Areva MiCOM P921 - Page 40

Areva MiCOM P921
376 pages
Print Icon
To Next Page IconTo Next Page
To Next Page IconTo Next Page
To Previous Page IconTo Previous Page
To Previous Page IconTo Previous Page
Loading...
P92x/EN CO/E11 Technical Guide
Connection Diagrams
Page 6/10 MiCOM P921-P922-P923
aB
C
D
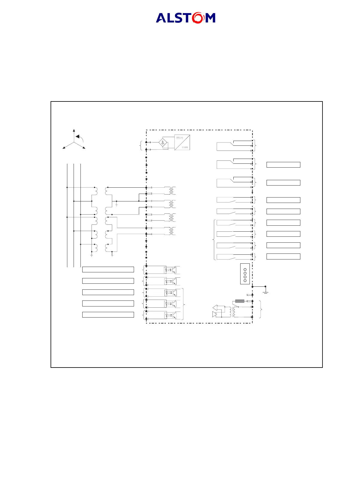
1.1.4 2VTs + residual VT connection
Select the « 2V
PP
+V
R
» configuration in the « CONFIGURATION » menu and in the
« GENERAL » sub-menu.
The 3 line voltages VAB, VBC, VCA and the residual voltage VR are then measured by
the MiCOM relay.
33
34
+
-
CB
A
Notes :
(1) Additional hardware for MiCOM P922 and P923 relay
(2) Additional hardware for MiCOM P922 and P923 relay
Scheme representing MiCOM relay off
41
42
43
44
45
46
49
50
22
24
26
28
19
17
21
23
27
25
WD
37
35
36
RL1
6
4
2
RL2
12
10
8
29
31
32
-
30
*
+
_
Phase rotation
Power
supply
Watchdog
Output contacts (programmable) :
RL3
16
14
RL4
20
18
RL5
3
1
RL6
7
5
RL7
9
11
RL8
13
15
4 programmable LEDs
Earth
connection
Communication port RS485
2VTs CONFIGURATION + residual voltage
LEDs
See note 2
(* System end resistance.
For last relay, connect 30 and 32 together)
*
See note 1
Programmable inputs :
RL2
RL1
EL1
EL2
EL3
EL4
EL5
RL3
RL4
RL5
RL6
RL7
RL8
+
_
+
_
+
_
+
_
+
_
P0392ENa
FIGURE 4 : 2VTs + RESIDUAL VT CONNECTION

Related product manuals