EasyManua.ls Logo

Armstrong G2D93CT - Gas Supply and Piping; Gas Piping Connection Details

Armstrong G2D93CT
40 pages
Print Icon
To Next Page IconTo Next Page
To Next Page IconTo Next Page
To Previous Page IconTo Previous Page
To Previous Page IconTo Previous Page
Loading...
506303-01 Page 21 of 40Issue 0938
If local codes allow the use of a flexible gas appliance
connector, always use a new listed connector. Do not use a
connector which has previously serviced another gas
appliance.
Pipe connections must be tight, and a non-hardening pipe
compound resistant to liquefied petroleum gases should
be used.
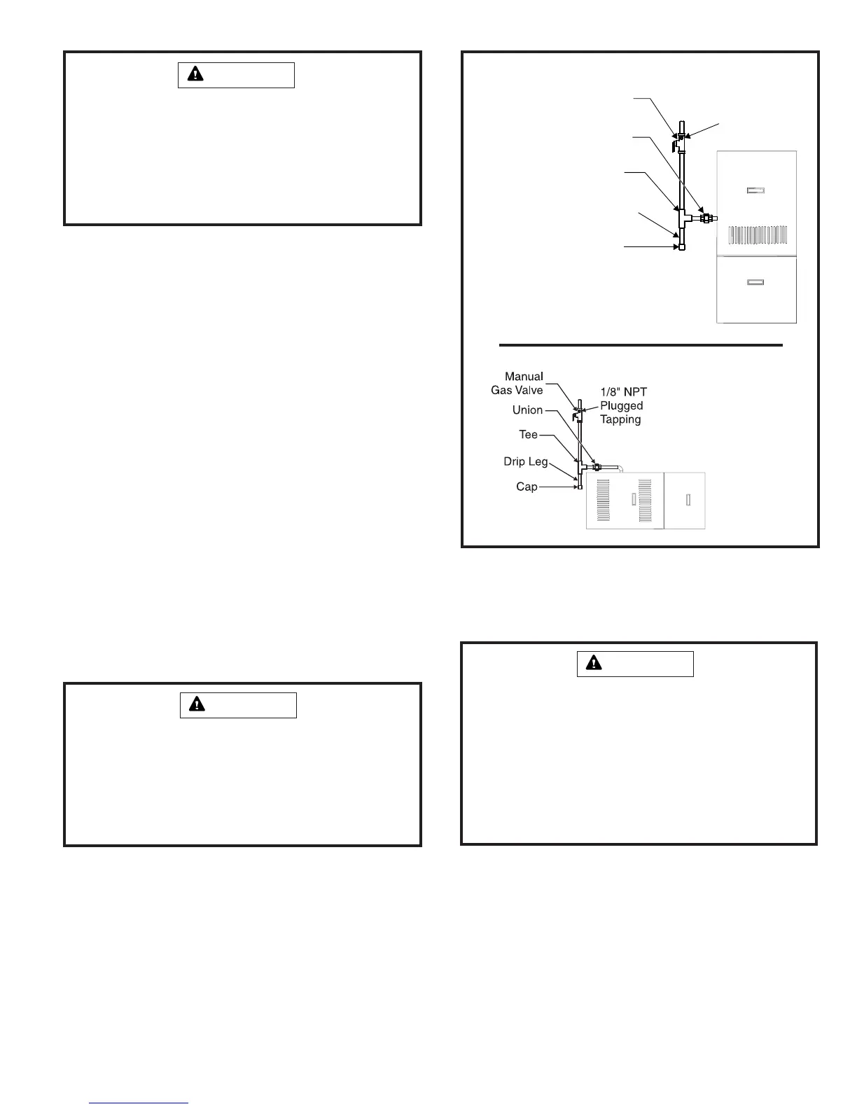
Connect the gas pipe to the furnace controls providing a
ground joint union as close to the controls as is possible to
facilitate removal of controls and manifold. Provide a drip
leg on the outside of the furnace. A manual shutoff valve
shall be installed in the gas line, outside the unit, 5' above
the floor, or in accordance with any local codes. A test gauge
connection must be installed with a 1/8" NPT plugged
tapping immediately upstream of the shutoff valve (see
Figure 32).
The furnace must be isolated from the gas supply piping
system by closing the individual manual shutoff valve during
any pressure testing of the gas supply piping system at test
pressure equal to or less than 1/2 psig (3.5 kPa) or 14"
W.C. If the piping system is to be tested at pressures in
excess of 1/2 psig (3.5 kPa), the furnace and its appliance
main gas valve must be disconnected from the gas supply
piping system.
After gas piping is complete, carefully check all piping
connections (factory and field) for gas leaks. Use a leak
detecting solution or other preferred means. Some soaps
used for leak detection are corrosive to certain metals.
Carefully rinse piping thoroughly after leak detection has
been completed.
Any conversion of a natural gas unit to propane gas must
be done by qualified personnel using a conversion kit
available from the manufacturer, following the instructions
in the conversion kit. If done improperly, overfiring of the
burners and improper burner operation can result. This
can create carbon monoxide which could cause
asphyxiation.
WARNING
The gas valve supplied with this furnace is rated at 1/2
psig maximum. Any higher pressure may rupture the
pressure regulator diaphragm and may cause overfiring
of the burners and improper burner operation. The
overfiring may result in the creation of carbon monoxide
which could cause asphyxiation.
WARNING
Failure to follow the safety warnings exactly could result
in serious injury, death, or property damage.
Never test for gas leaks with an open flame. Use a
commercially available soap solution made specifically
for the detection of leaks to check all connections. A
fire or explosion may result causing property damage,
personal injury, or loss of life.
WARNING
FIRE OR EXPLOSION HAZARD
Gas Piping Connection
Figure 32
Manual
Gas Valve
Union
Te e
Drip Leg
Cap
1/8" NPT
Plugged
Tapping
Upflow
Installation
Horizontal
Installation

Related product manuals