EasyManua.ls Logo

Ashley AF1500E - Page 42

Ashley AF1500E
60 pages
Print Icon
To Next Page IconTo Next Page
To Next Page IconTo Next Page
To Previous Page IconTo Previous Page
To Previous Page IconTo Previous Page
Loading...
-19-
UTILISER LES RÉGLAGES DE L’AIR PRIMAIRE ET SECONDAIRE
Air primaire – dirige l’air qui alimente le feu dans l’appareil de chauffage. Cet air est introduit à travers le registre de la porte
d’alimentation an de soutenir la combustion.
Air secondaire – air d’alimentation généralement introduit au-dessus du feu pour « rebrûler » efcacement la fumée créée
à la combustion primaire, avant que les gaz d’évacuation sortent du poêle. Cet air est préchauffé avant d’être éjecté dans
l’appareil de chauffage an qu’il réagisse (rebrûle) la fumée lors du mélange.
En augmentant la quantité d’air primaire fourni à l’appareil de chauffage, l’air secondaire devrait aussi être augmenté pour
assurer un brûlage propre.
Veilleuse arrière/air tertiaire air introduit à l’arrière de la boîte à feu, aidant à soutenir la chaleur de l’air secondaire et
aidant à assurer un brûlage plus propre.
Démarrage: Pendant le démarrage, les réglages de l’air primaire et secondaire doivent être entièrement ouverts aux
positions « élevées ». Ceci permet à une quantité maximale d’air de combustion pendant le démarrage initial an d’assurer
un démarrage rapide et propre. L’air primaire sera en position « élevée » lorsque le thermostat effectue un appel de chaleur.
Ces réglages doivent demeurer ouverts jusqu’à ce que le poêle se réchauffe et qu’un feu adéquat s’est établi. Une fois le
feu bien établi, les réglages d’air primaire et secondaire peuvent être réglés à la baisse, au réglage de chaleur désiré. L’air
primaire et secondaire se mélangent à l’intérieur de la boîte à feu pour offrir un brûlage plus efcace et plus propre. Nous
vous encourageons à apprendre à connaître votre poêle et à savoir comment il réagit en ajustant les registres d’air primaire
et secondaire, vous permettant d’atteindre les meilleurs résultats de brûlage possible pour le type de bois et les situations de
tirage pour votre installation en particulier.
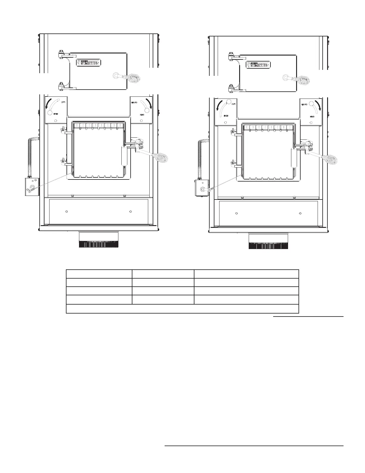
COMMANDES DE L’AIR
RÉGLAGE AU TAUX DE COMBUSTION MINIMAL
ENTIÈREMENT
FERMÉ
Volet d'aération à
l'arrière de la
veilleuse
ENTIÈREMENT
FERMÉ
Volet d'aération
secondaire
RÉGLAGE AU TAUX DE COMBUSTION MAXIMUM
ENTIÈREMENT
OUVERT
Volet d'aération
à l'arrière de la
veilleuse
ENTIÈREMENT
OUVERT
Volet d'aération
secondaire
COMMANDES DE L’AIR
Bas taux de combustion Taux de combustion élevé
Volet d’aération primaire Entièrement fermé Entièrement ouvert
Volet d’aération à l’arrière de la veilleuse Entièrement fermé Entièrement ouvert
Volet d’aération secondaire Entièrement fermé Entièrement ouvert

Related product manuals