EasyManua.ls Logo

Ashley APC1406 - Page 14

Ashley APC1406
32 pages
Print Icon
To Next Page IconTo Next Page
To Next Page IconTo Next Page
To Previous Page IconTo Previous Page
To Previous Page IconTo Previous Page
Loading...
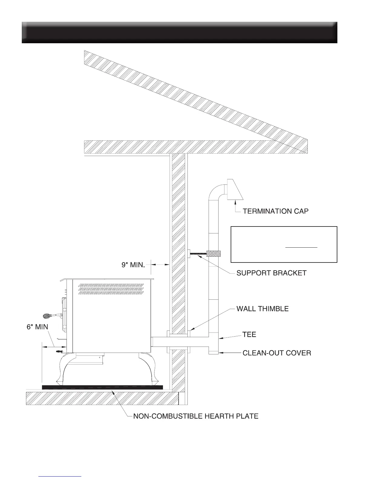
14 USSC
THROUGH THE WALL, VERTICAL PIPE INSTALLATION
WITH TERMINATION CAP
The Hearth Pad is not required under the unit if the oor is noncombustible but is required 6 inches (152mm) beyond
the front of the unit and 6 inches (152mm) beyond each side of the door if the oor is a combustible oor. (wood oor-
ing, carpet, linoleum, etc.)
A MINIMUM OF 3 VERTICAL
FEET OF PIPE OUTSIDE THE
HOME IS REQUIRED!

Related product manuals