EasyManua.ls Logo

Assa Abloy Effeff 352M - Page 74

Assa Abloy Effeff 352M
Print Icon
To Next Page IconTo Next Page
To Next Page IconTo Next Page
To Previous Page IconTo Previous Page
To Previous Page IconTo Previous Page
Loading...
73
FR
Montage
min. 2
max. 4,5
B
B
A
A
B - B
A -A
abcde
1 2
3 4
24
13
6
1
Ø5,3
x 90°
Ø6,3
x 90°
16
M5
164
M5
SELTA M5
(optio nal)
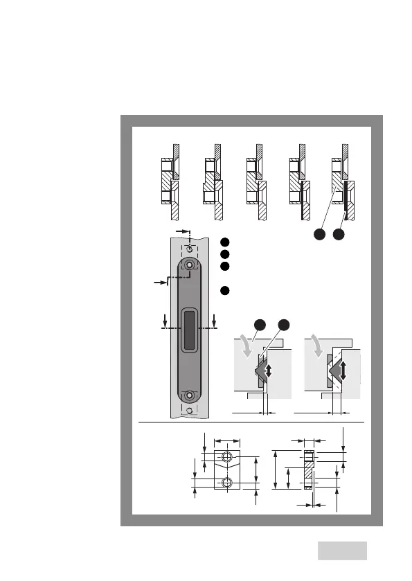
Fig. 4:
Montage avec patte
de montage SETLA M5
et entretoises / jeu
de fonctionnement
1 SETLA M5
2 Entretoises
3 Gâche de porte d’issue de
secours 352M
4 Contrepartie de verrouillage

Table of Contents

Related product manuals