EasyManua.ls Logo

Assa Abloy Effeff 352M - Caractéristiques Techniques

Assa Abloy Effeff 352M
Print Icon
To Next Page IconTo Next Page
To Next Page IconTo Next Page
To Previous Page IconTo Previous Page
To Previous Page IconTo Previous Page
Loading...
81
FR
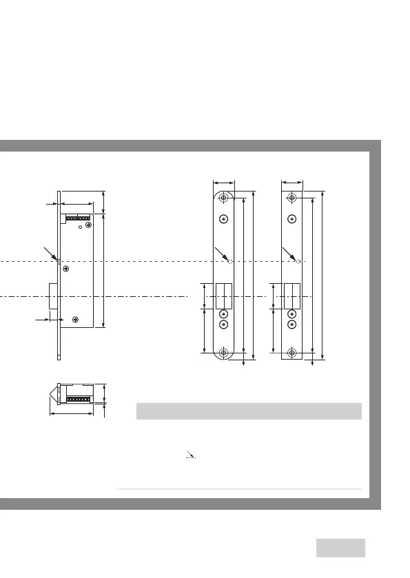
Caractéristiques techniques
30
52,2
231,3
8
27
393
25
52
135
200
184
8
200
184
10
24
30
52,2
Gâche de porte de
secours 352M
Têtières au niveau du verrouillage
A
Attention!
Respecter l’orientation du verrouillage par rapport
à la contrepartie: Lors du montage, veillez à ce que les
contacts Reed (
) des capteurs magnétiques soient
parfaitement alignés les uns aux autres. Sinon, le cap-
teur ne fonctionnerait pas.
voir remarque

Table of Contents

Related product manuals