EasyManua.ls Logo

Astralpool 78540 - Swimming Pool Heat Pumps Plumbing

Astralpool 78540
29 pages
Print Icon
To Next Page IconTo Next Page
To Next Page IconTo Next Page
To Previous Page IconTo Previous Page
To Previous Page IconTo Previous Page
Loading...
7
3.INSTALLATION AND CONNECTION
3.4
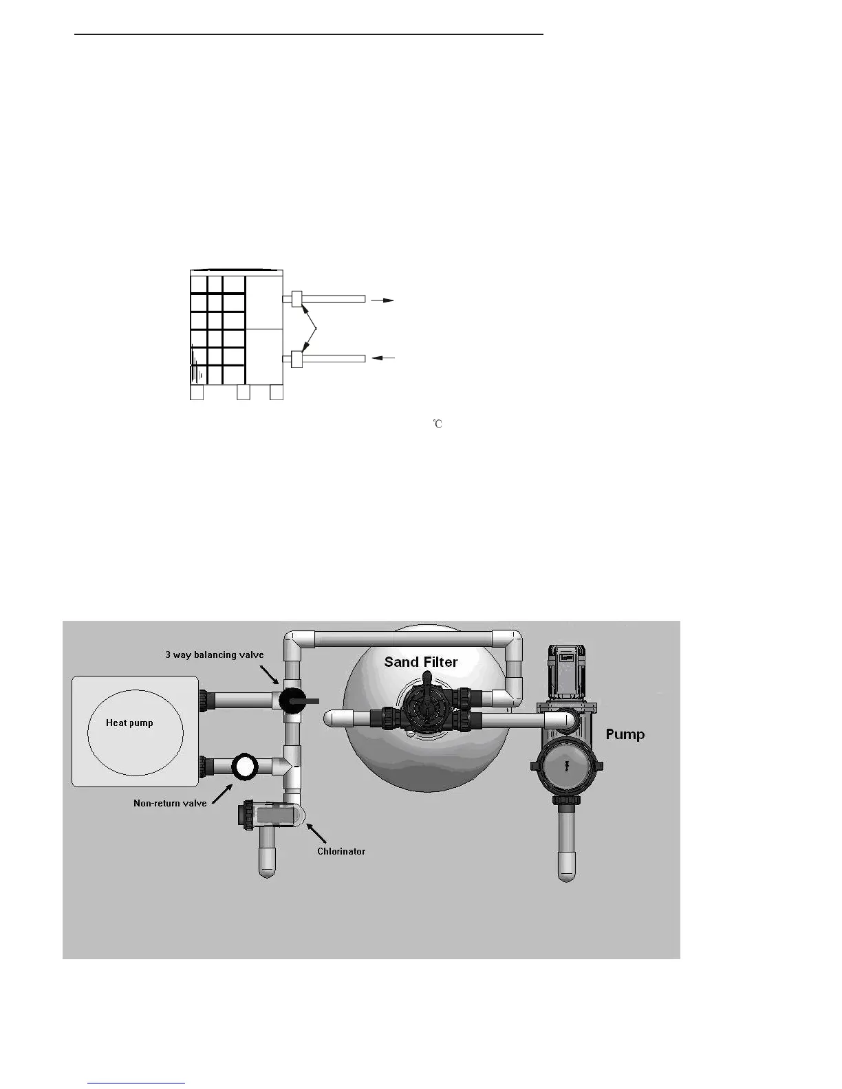
Swimming Pool Heat Pumps Plumbing
The Swimming Pool Heat Pumps exclusive rated flow titanium heat exchanger requires no special plumbing arrangements except
by-pass(please set the flow rate according to the nameplate). The water pressure drop is less than 10kPa at max. Flow rate. Since
there is no residual heat or flame Temperatures, The unit does not need copper heat sink piping. PVC pipe can be run straight into
the unit.
Location: Connect the unit in the pool pump discharge (return) line downstream of all filter and pool pumps, and upstream of any
chlorinators, ozonators or chemical pumps.
Standard model have slip glue fittings which accept 40mm NB PVC pipe for connection to the pool or spa filtration piping. By using
a 50 NB to 40NB you can plumb 50NB PVC piping straight into the unit.
Give serious consideration to adding a quick coupler fitting at the unit inlet and outlet to allow easy draining of unit for winterizing and
to provide easier access should servicing be required.
To pool
PVC COUPLER
RECOMMENDED(Provided)
From pump
Condensation: Since the Heat pump cools down the air about 4 , water may condense on the fins of the horseshoe
shaped evaporator. If the relative humidity is very high, this could be as much as several liters an hour. The water will run
down the fins into the base pan and drain out through the barbed plastic condensation drain fitting on the side of the base
pan.
This fitting is designed to accept 3/4" clear vinyl tubing which can be pushed on by hand and run to a suitable drain. It is easy to
mistake the condensation for a water leak inside the unit.
NB: A quick way to verify that the water is condensation is to shut off the unit and keep the pool pump running. If the water stops
running out of the base pan, it is condensation. AN EVEN QUICKER WAY IS to TEST THE DRAIN WATER FOR CHLORINE - if the
is no chlorine
present, then it's condensation.

Related product manuals