EasyManua.ls Logo

Atag VA2113RT - Consignes de Sécurité; Installation

Atag VA2113RT
156 pages
Go to English
To Next Page IconTo Next Page
To Next Page IconTo Next Page
To Previous Page IconTo Previous Page
To Previous Page IconTo Previous Page
Loading...
817- 890
520
556
660-755*
54
196
444
573
596
125-198
55
31
107
1194
700
670
[mm]
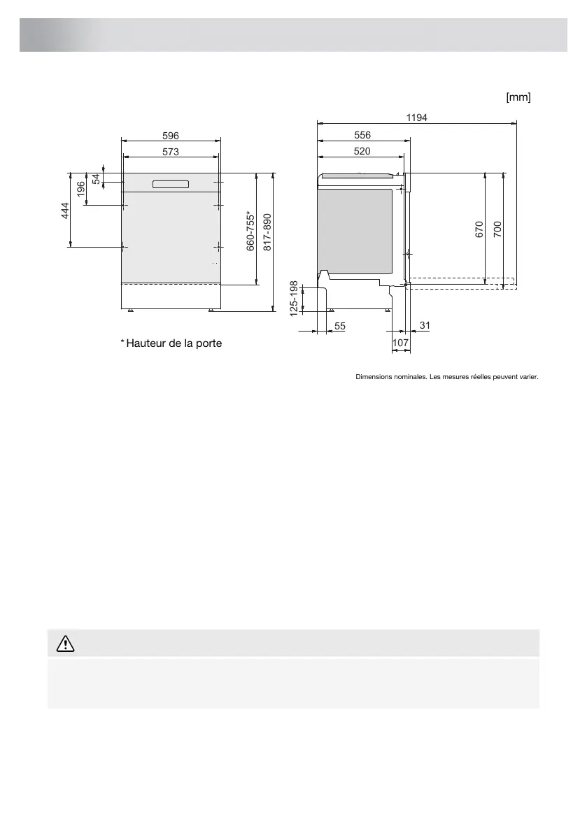
Hauteur de la porte
*
Dimensions nominales. Les mesures réelles peuvent varier.
Il est important de lire et de respecter scrupuleusement les instructions et les indications ci-dessous.
Procédez à l'installation et aux raccordements conformément aux instructions d'installation de la
notice d'installation séparée.
Consignes de sécurité
Le raccordement à lélectricité, à leau et à la tuyauterie d'évacuation doit être effectué par un
professionnel qualifié.
Suivez toujours la réglementation en vigueur en ce qui concerne l'eau, l'évacuation et l'électricité.
Prenez des précautions lors de l'installation ! Mettez des gants de protection ! L'installation doit
être effectuée par deux personnes !
Placez un plateau d'égouttement sur le sol, sous le lave-vaisselle, pour éviter les dommages
résultant d'une éventuelle fuite d'eau.
Avant de visser le lave-vaisselle à sa place, procédez à un essai en faisant fonctionner le pro-
gramme Programme 1h avec loption Express. Vérifiez que le lave-vaisselle se remplit d'eau et
se vidange. Vérifiez également qu'il n'y a aucune fuite au niveau des raccords.
ATTENTION !
Coupez l'arrivée d'eau lors de l'installation du lave-vaisselle !
Retirez la fiche de la prise ou coupez lalimentation électrique pendant les travaux !
Installation
Les dimensions de la niche et des raccords sont indiquées dans les instructions d'installation.
Vérifiez que toutes les dimensions sont correctes avant de commencer l'installation. Notez que
la hauteur de la porte peut être ajustée pour correspondre à d'autres raccords.
32
Installation

Table of Contents

Related product manuals