EasyManua.ls Logo

Atlas Copco GA11 - 7.1 Calling Up Outlet and Dewpoint Temperatures; 7.2 Calling Up Running Hours; 7.3 Calling Up Loading Hours

Atlas Copco GA11
39 pages
To Next Page IconTo Next Page
To Next Page IconTo Next Page
To Previous Page IconTo Previous Page
To Previous Page IconTo Previous Page
Loading...
2920 1462 00
11
Instruction book
Ref. Designation Function
8 Automatic Indicates that the regulator is
operation LED automatically controlling the
compressor: the compressor is
loaded, unloaded, stopped and
restarted depending on the air
consumption and the limitations
programmed in the regulator.
9 Function keys Keys to control and program the
compressor. See below.
10 Pictograph Alarm
11 Pictograph Automatic operation
12 Pictograph Voltage on
S3 Emergency
stop button Push button to stop the compressor
immediately in case of emergency.
After remedying the trouble,
unlock the button by pulling it out.
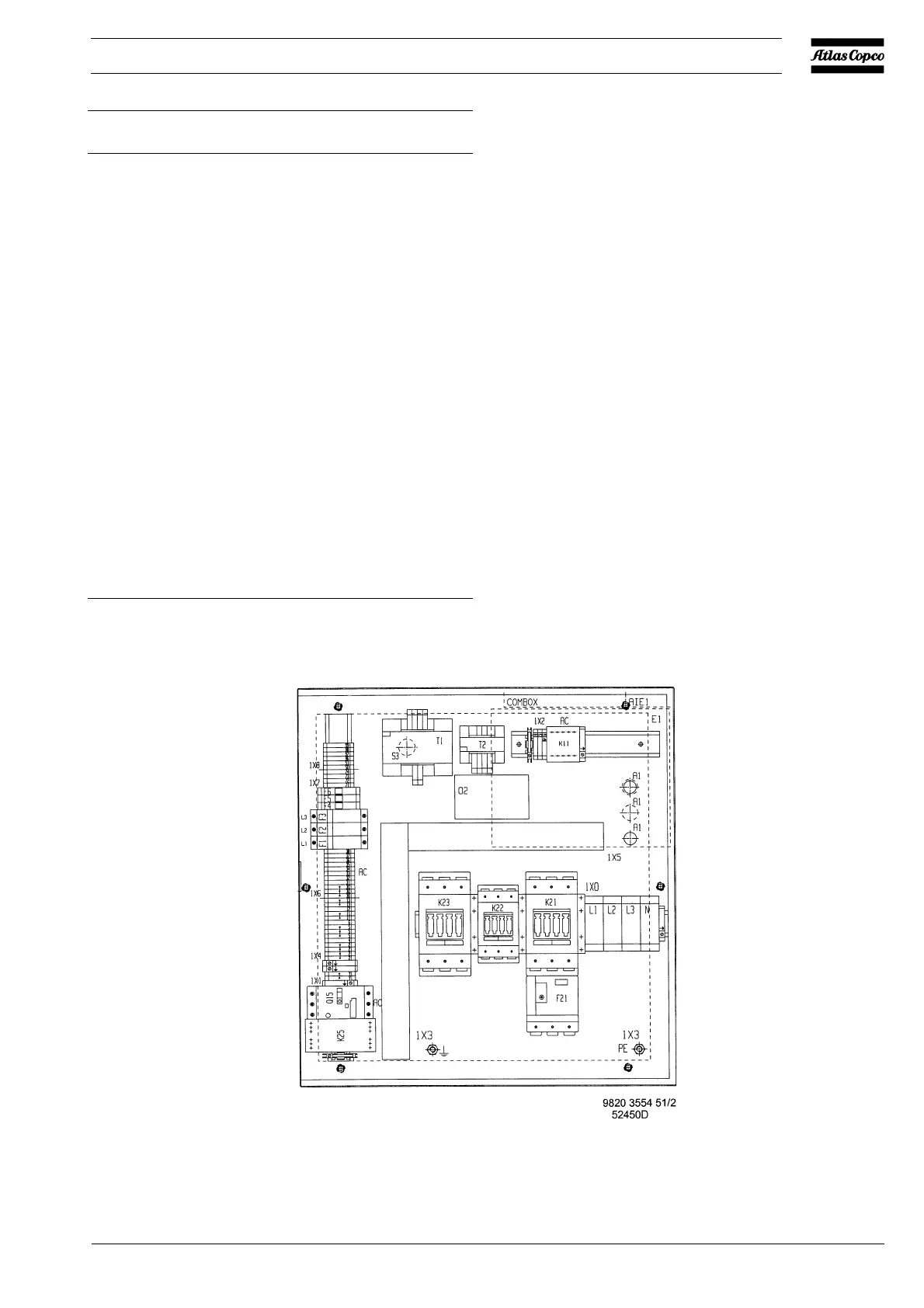
See Fig. 1.11 for denomination of components
Fig. 1.10 Electric cabinet, GA Workplace / Workplace FF (typical example)

Table of Contents

Other manuals for Atlas Copco GA11

Related product manuals