EasyManua.ls Logo

Atlas Copco GA110 - 2.2 Installation proposal

Atlas Copco GA110
41 pages
To Next Page IconTo Next Page
To Next Page IconTo Next Page
To Previous Page IconTo Previous Page
To Previous Page IconTo Previous Page
Loading...
2920 1251 02
17
Instruction book
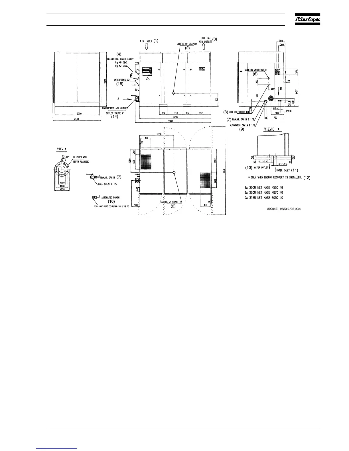
2.2 Installation proposal (Fig. 7)
1. Install the compressor on a level floor suitable for taking
the weight of the compressor. For proposal 1, the
recommended minimum distance between the top of the
bodywork and the ceiling is 1200 mm.
2. Remove the plastic plug (if provided) from the
compressor air outlet pipe and fit the air outlet valve to
compressor outlet pipe (3-Fig. 8). Close the valve and
connect it to the net.
3. The pressure drop over the air outlet pipe can be
calculated as follows:
L x 450 x Qc
1.85
dp =
_______________________
d
5
x P
dp = pressure drop (recommended maximum = 0.1
bar)
L = length of outlet pipe in m
d = inner diameter of the outlet pipe in mm
P = absolute pressure at the compressor outlet in
bar(a)
Qc = free air delivery of the compressor in l/s
It is recommended that the connection of the compressor
air outlet pipe is made on top of the main air net pipe to
minimize carry-over of possible remainder of
condensate.
As a rule of thumb, following formula can be used to
calculate the recommended volume of the air net:
30 x C x p x Q
V=
_______________________
dP
Fig. 6f. Dimension drawing GA W 200 up to -315

Related product manuals