EasyManua.ls Logo

Atlas Copco ZR-75 - 4 Installation

Atlas Copco ZR-75
138 pages
To Next Page IconTo Next Page
To Next Page IconTo Next Page
To Previous Page IconTo Previous Page
To Previous Page IconTo Previous Page
Loading...
4 Installation
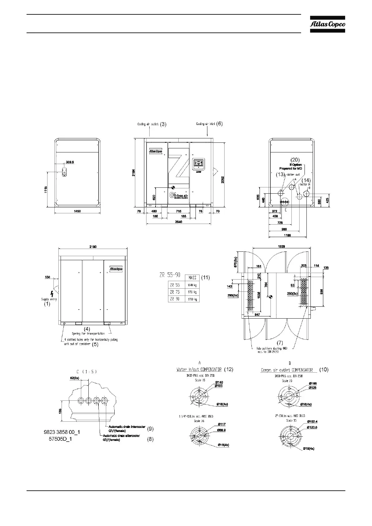
4.1 Dimension drawings
Dimension drawing, ZR Pack
Instruction book
73

Table of Contents

Related product manuals