EasyManua.ls Logo

Atlas Copco ZR-75 - Page 77

Atlas Copco ZR-75
138 pages
To Next Page IconTo Next Page
To Next Page IconTo Next Page
To Previous Page IconTo Previous Page
To Previous Page IconTo Previous Page
Loading...
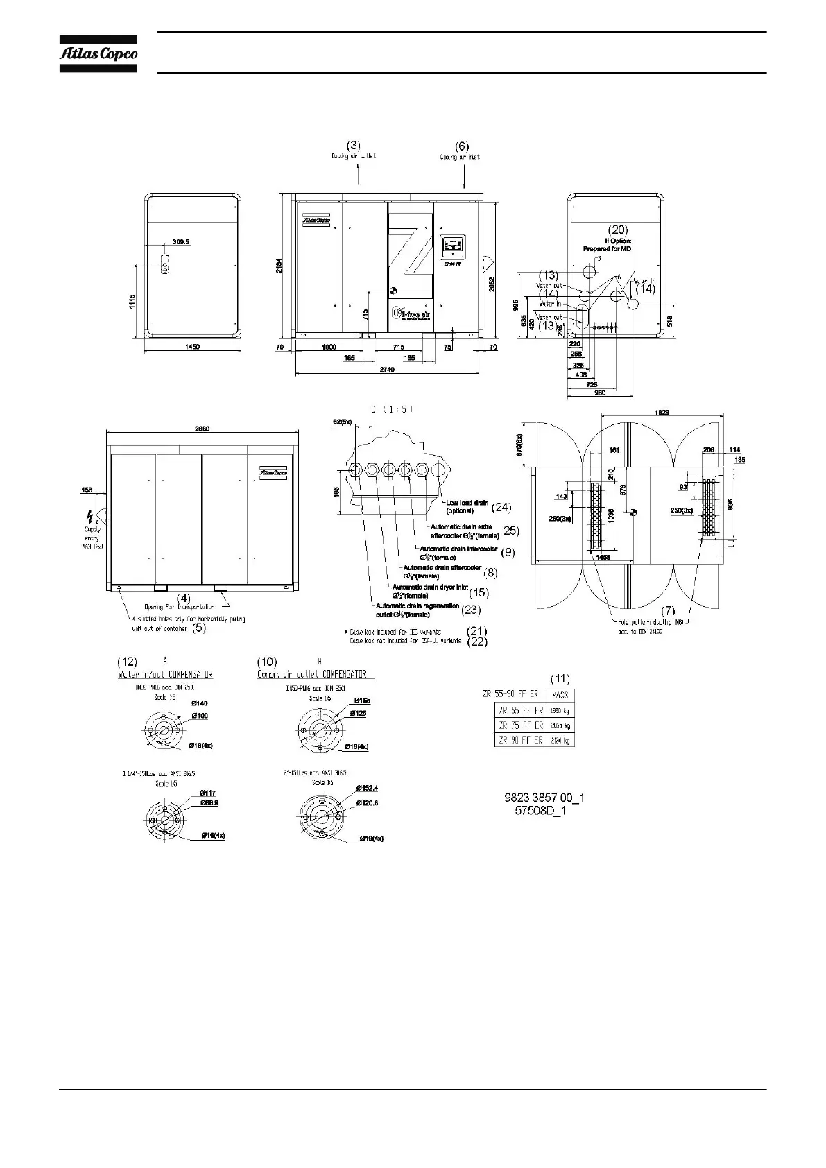
Dimension drawing, ZR Full-Feature with energy recovery
Instruction book
76

Table of Contents

Related product manuals