EasyManua.ls Logo

Atlas Copco ZR-75 - Page 84

Atlas Copco ZR-75
138 pages
To Next Page IconTo Next Page
To Next Page IconTo Next Page
To Previous Page IconTo Previous Page
To Previous Page IconTo Previous Page
Loading...
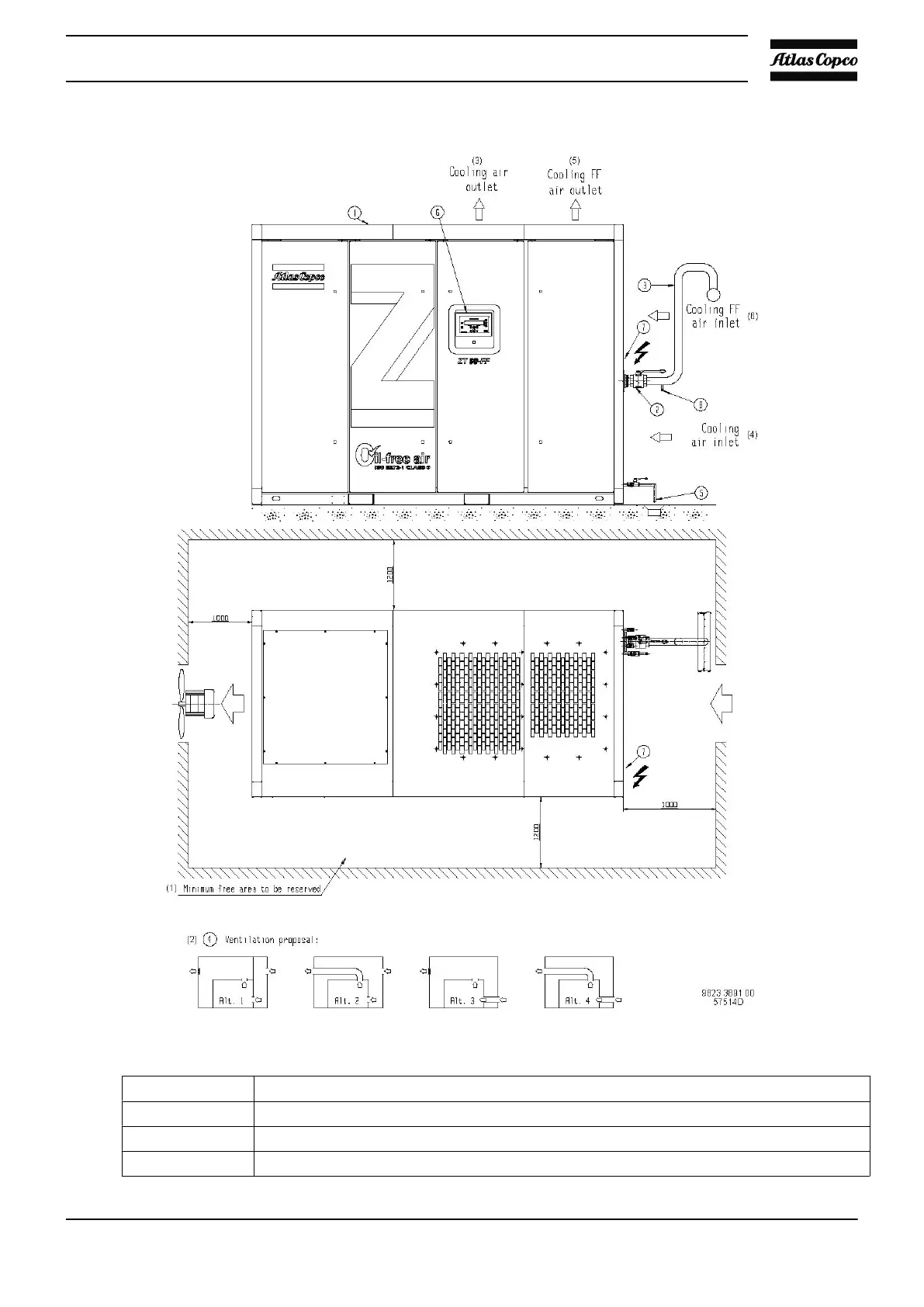
Installation proposal, ZT Full-Feature
Text on figures
Ref Name
(1) Minimum free area to be reserved
(2) Ventilation proposal
(3) Cooling air outlet
Instruction book
83

Table of Contents

Related product manuals