EasyManua.ls Logo

Avalon Stove - Through-the-wall Venting Example

Avalon Stove
42 pages
Print Icon
To Next Page IconTo Next Page
To Next Page IconTo Next Page
To Previous Page IconTo Previous Page
To Previous Page IconTo Previous Page
Loading...
14 Installation (For Qualified Installers Only)
© Travis Industries 4080725 100-01154
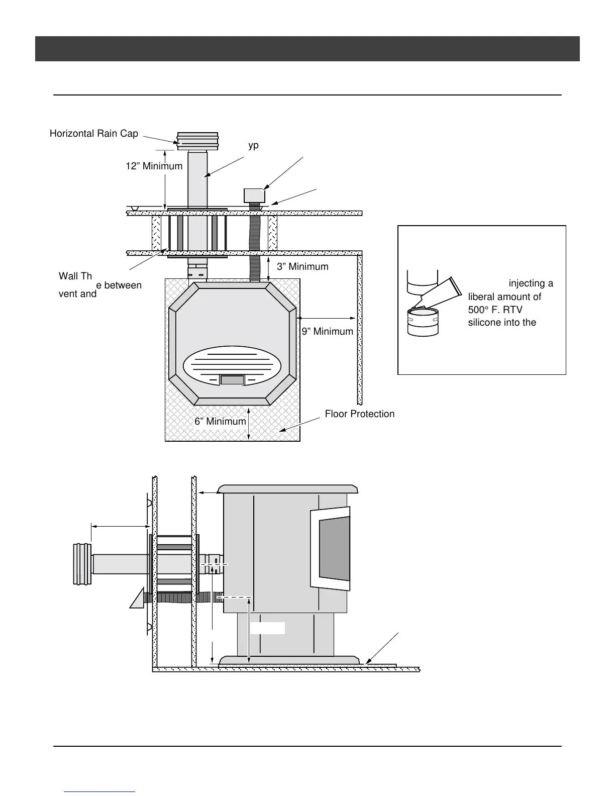
Installation Example: Direct "Through-the-wall" Installation
AAAAAAA
A
AAAAA
A
A
AAAAA
A
A
AAAAA
A
A
AAAAA
A
A
AAAAA
A
A
AAAAA
A
A
AAAAA
A
AAAAAAA
AAAAAAAAAAAA
A
A
A
A
A
A
A
A
3 Minimum
9 Minimum
A
A
A
A
A
A
AAAAAAAAAAAA
Floor Protection
6 Minimum
A
A
12 Minimum
Horizontal Rain Cap
Wall Thimble (note
clearance between
vent and
combustibles)
Outside Air
Type "L"
Vent
12
Minimum
A
A
A
A
A
A
A
A
A
A
A
AAAAAAAAAAAAAA
AAAAAAAAAAAAAA
AAAAAAAAAA
A
A
A
A
A
A
A
A
A
A
3 Minimum
17-5/8
10-1/2
Floor Protection
Seal each vent
section (including
adapters, elbows,
etc...) by injecting a
liberal amount of
500° F. RTV
silicone into the gap
between sections.
500° F. RTV
Silicone
AAAAA
AAAAA
AAAAA
House Shield - prevents discoloration to outside of
home - HIGHLY RECOMMENDED

Table of Contents

Related product manuals