EasyManua.ls Logo

Axis A8207-VE - Page 5

Axis A8207-VE
27 pages
Print Icon
To Next Page IconTo Next Page
To Next Page IconTo Next Page
To Previous Page IconTo Previous Page
To Previous Page IconTo Previous Page
Loading...
AXISA8207-VEMkIINetworkVideoDoorStation
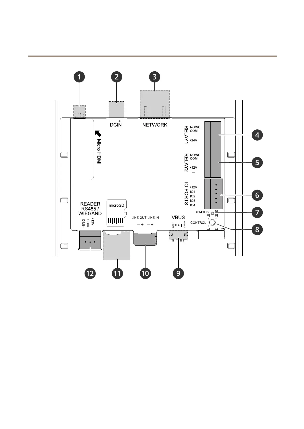
Productoverview
1
HDMIconnectoronpage23(microHDMI)
2
Powerconnectoronpage25
3
Networkconnectoronpage23(PoE+)
4
Relayconnectoronpage23
5
Relayconnectoronpage23
6
I/Oconnectoronpage24
7
StatusLED
8
Controlbuttononpage23
9
2NVBUS(notused)
10
Audioconnectoronpage23
11
SDcardslotonpage22(microSD/microSDHC/microSDXC)
12
Readerconnectoronpage24
5

Other manuals for Axis A8207-VE

Related product manuals