EasyManua.ls Logo

b-red VK01 US - VEPK01 US Technical Specifications; System Connection Examples and Wiring; Basic System Wiring Configuration

Default Icon
12 pages
Print Icon
To Next Page IconTo Next Page
To Next Page IconTo Next Page
To Previous Page IconTo Previous Page
To Previous Page IconTo Previous Page
Loading...
EN
TECHNICAL FEATURES
Dimensions 97x130x43 mm
Operating temperature -20 °C +55 °C
IP Degree IP 34
Standard video PAL/NTSC
Minimum lighting 0,05 LUX
Camera 1/3’ color CCD sensor
Resolution 480 TVL
Viewing angle 72°
ES
CARACTERÍSTICAS TÉCNICAS
Dimensiones 97x130x43 mm
Temperatura de funcionamiento -20 °C +55 °C
Grado IP IP 34
Standard vídeo PAL/NTSC
Iluminación mínima 0,05 LUX
Cámara 1/3’ color CCD sensor
Resolución 480 TVL
Ángulo de visión 72°
Door Lock/
Abrepuerta
Entry Panel/
Placa Exterior
Power supply adaptor
AC/DC (included)
Adaptador para fuente
de alimentaciòn
AC/DC (incluido)
Power Supply for lock
Fuente de alimentación
para el bloqueo
CN1
VRK01 US
1
2
3
4
CN2
1
2
3
4
5
6
J3 J1
J2
127 V 60Hz
1 AUDIO
2 GND
3 V+
4 VIDEO
5
5
N
L
Power Supply for Lock/
Fuente de alimentación
para el bloqueo
VEPK01 US
EN
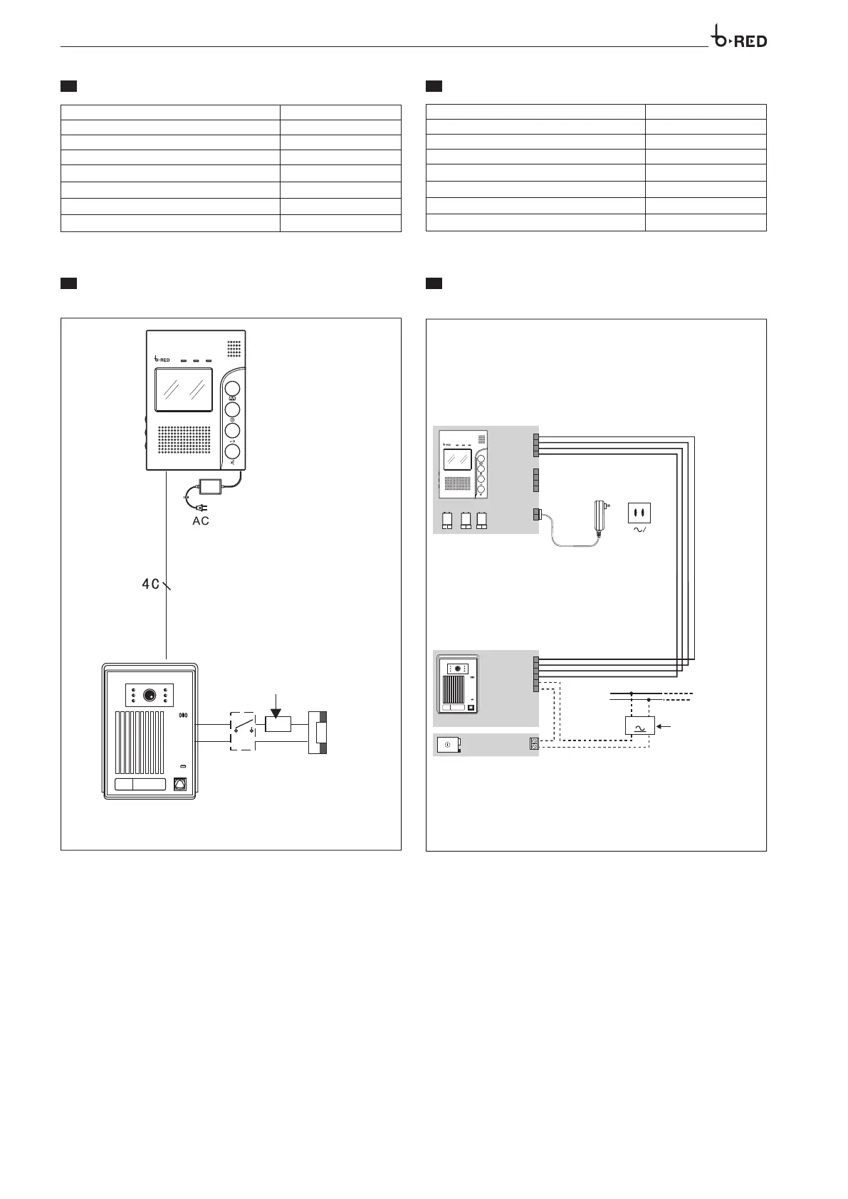
CONNECTION EXAMPLES
Basic Con guration
ES
EJEMPLOS DE CONEXIÓN
Con guratión Básica
7

Related product manuals