EasyManua.ls Logo

Baldor TS175 - TS400 Connection Diagram

Baldor TS175
90 pages
Print Icon
To Next Page IconTo Next Page
To Next Page IconTo Next Page
To Previous Page IconTo Previous Page
To Previous Page IconTo Previous Page
Loading...
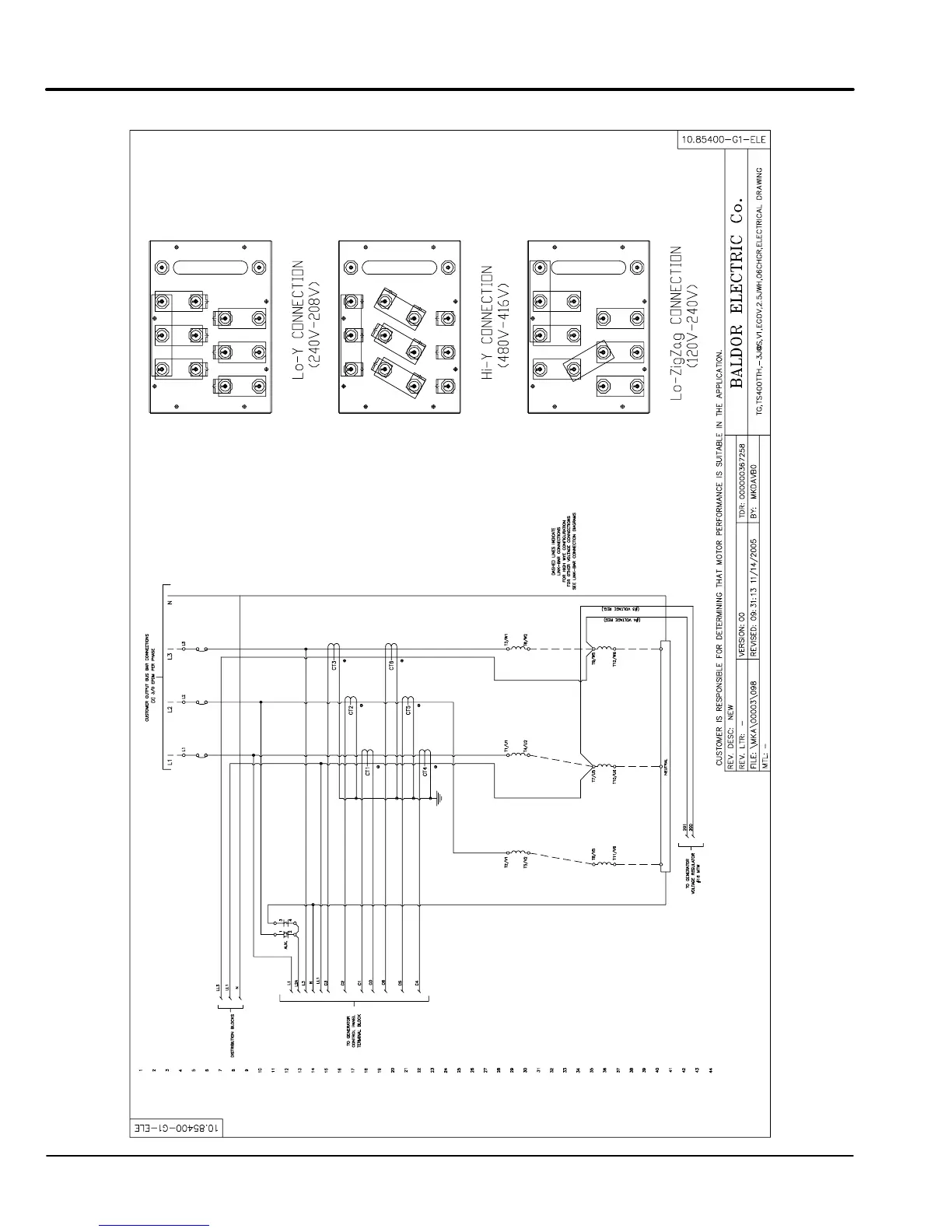
A-32 Wiring Diagrams
MN2417
Figure A-31 TS400 Connection Diagram

Table of Contents

Other manuals for Baldor TS175

Related product manuals