EasyManua.ls Logo

B&G universal interface box - Installazione

Default Icon
31 pages
Print Icon
To Previous Page IconTo Previous Page
To Previous Page IconTo Previous Page
Loading...
installazione
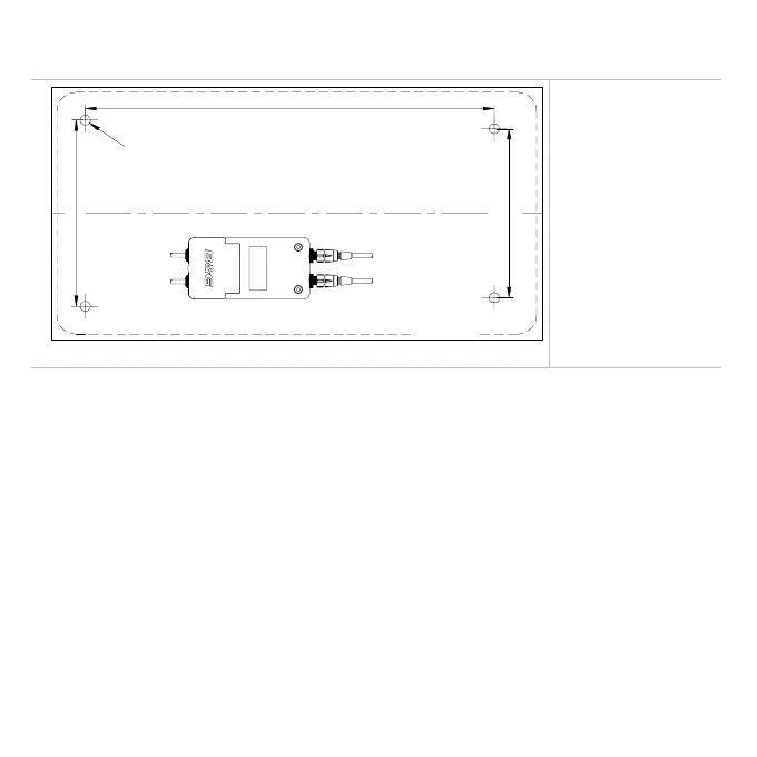
53mm
ORIENTATION
48mm
113.1mm
BGM014062
BOX BASE OUTLINE
Drill 4 off holes
(2.9mmØ)for
No.6 x 3/4" self
tapping screws
Usare la sagoma e le
istruzioni fornite per
installare la scatola di
interfaccia.
Trapanare 4 fori (Ø 2,9
mm) per viti autofilettanti
6 x ¾”
ORIENTAMENTO
SAGOMA BASE SCATOLA

Related product manuals