EasyManua.ls Logo

Belling IH60XL - Fitting into Worktop

Belling IH60XL
28 pages
Print Icon
To Next Page IconTo Next Page
To Next Page IconTo Next Page
To Previous Page IconTo Previous Page
To Previous Page IconTo Previous Page
Loading...
installation
Fitting into worktop
Cut a hole in the work surface to the
required size. See table for relevant
dimensions.
A clearance of at least 50mm should be
maintained between the cutout and any
rear or side wall.
The worktop must be of heat-resistant
material or covered with heat-resistant
material.
Protecting the cut-out;
The types of chipboard used for work
surfaces swell relatively quickly in contact
with humidity.
Apply a special varnish or adhesive to
the cut edge to protect it from steam or
condensation which may form under the
work surface under the hob.
This hob can be installed conventionally
(glassabovetheworktop)orrecessedinto
theworktopforausht.
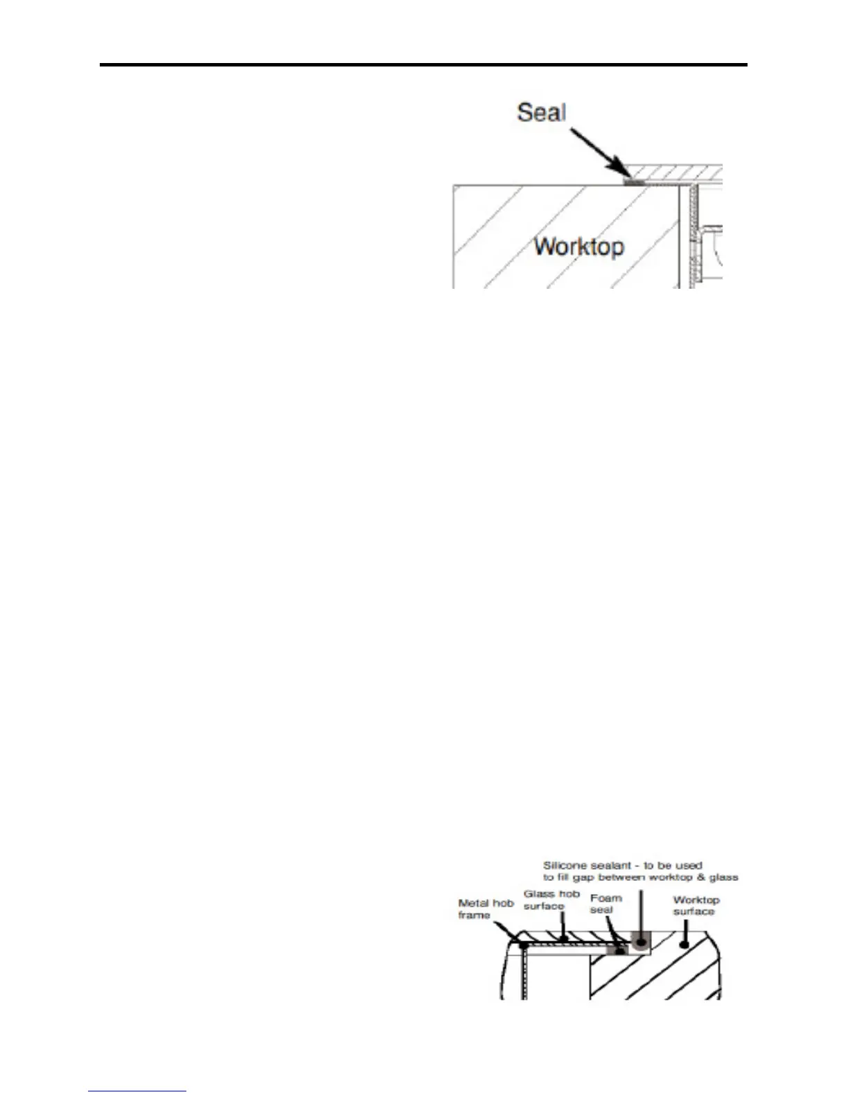
Conventional Installation
Apply the self adhesive seal to the
underside edges of the hob glass. For best
results, the seal should be adhered along
each side in turn, as close to the edge as
possible, and trimmed at each corner, tak-
ing care to ensure a neat join.
Place the hob in the aperture, checking the
hob glass is covering the work top along all
four sides.
Set the front edge of the appliance parallel
with the front of the work top.
Locate and attach the securing clamps
as required, Tighten the screws so that
thehobispulleddownrmlyagainstthe
worktop, thus ensuring a good seal.
Recessed Method (selected models)
Recess the work top to the appropriate
depth(Approx5mm)andshapetotthe
hob (add 1mm to overall glass size.
Apply the self adhesive seal to the
underside of the hob glass. For best
results, the seal should be adhered along
each joint in turn, as close to the edge
as possible, and trimmed at each corner,
taking care to ensure a neat join. Insert
the hob into the recess, ensuring that the
foam seal is sitting correctly.
Locate and attach the securing clamps to
the front and rear underside of the hob,
using the screws provided. Tighten the
screws so that the hob is pulled down
rmlyagainsttheworktop,thusensuring
a good seal.
Youmaywanttollanygapbetweenthe
hob top glass and the work top surface
withsiliconesealant.DONOTtsilicone
sealant under the glass hob instead of
foam seal.

Related product manuals