EasyManua.ls Logo

BendPak SP-7XE - Page 57

Default Icon
80 pages
Print Icon
To Next Page IconTo Next Page
To Next Page IconTo Next Page
To Previous Page IconTo Previous Page
To Previous Page IconTo Previous Page
Loading...
SP-7XE/F Full-Rise Scissor Lift 57 P/N 5900010Rev. B3 — September 2023
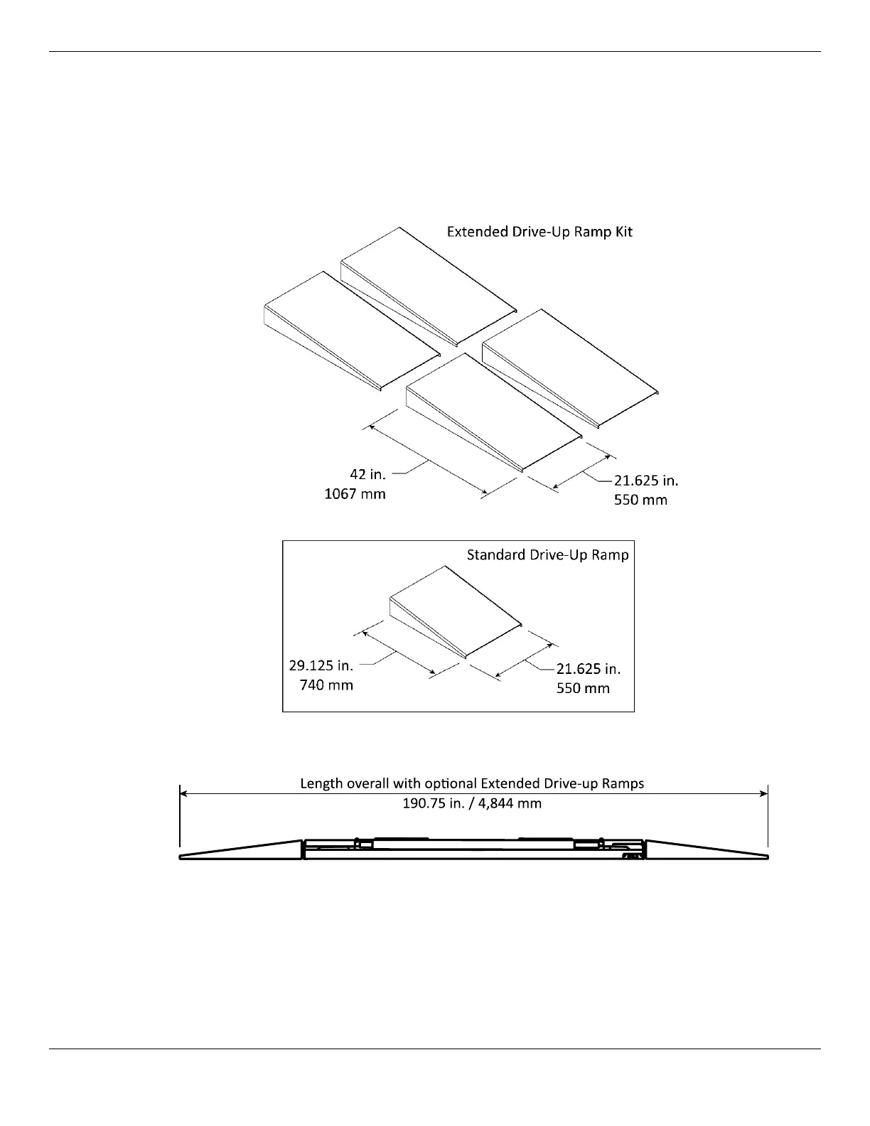
Optional Extended Drive-Up Ramp Kit
Extended Drive-Up Ramps (5210306) are available for the SP-7XE. The extended Ramps are
12.87 in. / 327 mm longer and a drop-in replacement for the standard ramps delivered with the
SP-7XE.
The Extended Drive-Up Ramp Kit includes four Ramps.
Visit the Web Technical support and service is available from your dealer, on the Web at
bendpak.com, by email at support@bendpak.com, or by phone at
(800) 253-2363, option 7, then 5.

Related product manuals