EasyManua.ls Logo

BFT ARGO BT A 20 - Page 9

BFT ARGO BT A 20
Print Icon
To Next Page IconTo Next Page
To Next Page IconTo Next Page
To Previous Page IconTo Previous Page
To Previous Page IconTo Previous Page
Loading...
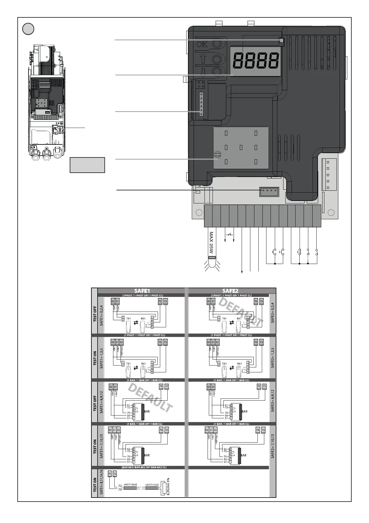
H
F
24V~(-)
24V~(+)
24 VSafe~(+)
IC 1
IC 2
NO
NO
SAFE 1
STOP
COM
SAFE 2
NC
NC
NC
AUX 3
(MAX 24V 1A)
20 2126 27 70 7172 7350 515260 6162
20 2126 27 70 7172 7350 515260 6162
Luce di cortesia,
Courtesy lamp,
Lampe de courtoisie,
Hilfsbeleuchtung,
Luz interior,
Waaklicht.
Connettore programmatore palmare,
Palmtop programmer connector,
Connecteur programmateur de poche,
Steckverbinder Palmtop-Programmierer,
Conector del programador de bolsillo,
Connector programmeerbare palmtop.
Display + tasti programmazione,
Display plus programming keys,
Acheur et touches de programmation,
Display und Programmierungstasten,
Pantalla más botones de programación,
Display meerdere toetsen programmeur.
Led presenza alimentazione
Power ON LED,
Voyant LED présence d’alimentation,
Led Vorhandensein Stromversorgung,
Led Presencia de Alimentación,
Led Aanwezigheid voeding
Connettore scheda opzionale,
Optional board connector,
Connecteur carte facultative,
Steckverbinder Zusatzkarte,
Conector de la tarjeta opcional,
Connector optionele kaart.
Fusibile,
Fuse,
Fusible,
Schmelzsicherung,
Fusible,
Zekering:
1,6 AT
ARGO BT A 20-35 - 9
D814038 0AA00_03

Other manuals for BFT ARGO BT A 20

Related product manuals