EasyManua.ls Logo

BFT EOS - Page 12

BFT EOS
16 pages
Print Icon
To Next Page IconTo Next Page
To Next Page IconTo Next Page
To Previous Page IconTo Previous Page
To Previous Page IconTo Previous Page
Loading...
270
EOS
EOS
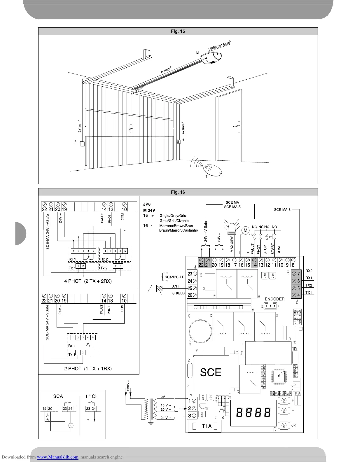
AUTOMATION FOR SPRING OVERHEAD DOORS
AUTOMATION FOR SPRING OVERHEAD DOORS
D811325_02
!"#
$
%&
'
!"#
(
'
!"#
(
'
'
) *
) *
+,-,.%+#/%+,0
+!2%+,0%,3#4.
!.4#%5.64%524
5!24%!74%!0!48.
(
&
9
:
9
( ;9:;(
8 8 8 8
$

Other manuals for BFT EOS

Related product manuals