EasyManua.ls Logo

Bitzer CSH8551-110 - Page 18

Bitzer CSH8551-110
20 pages
Print Icon
To Next Page IconTo Next Page
To Next Page IconTo Next Page
To Previous Page IconTo Previous Page
To Previous Page IconTo Previous Page
Loading...
60
SL
1/8"-27 NPTF
12
1 1/8"-18 UNEF
M22x1,5
5
7/8
9
704
40
60
146
668
158
116
585
161
1540
729
695
340
322
655
726
400
465
25
35
17
4
305
599
DL
105
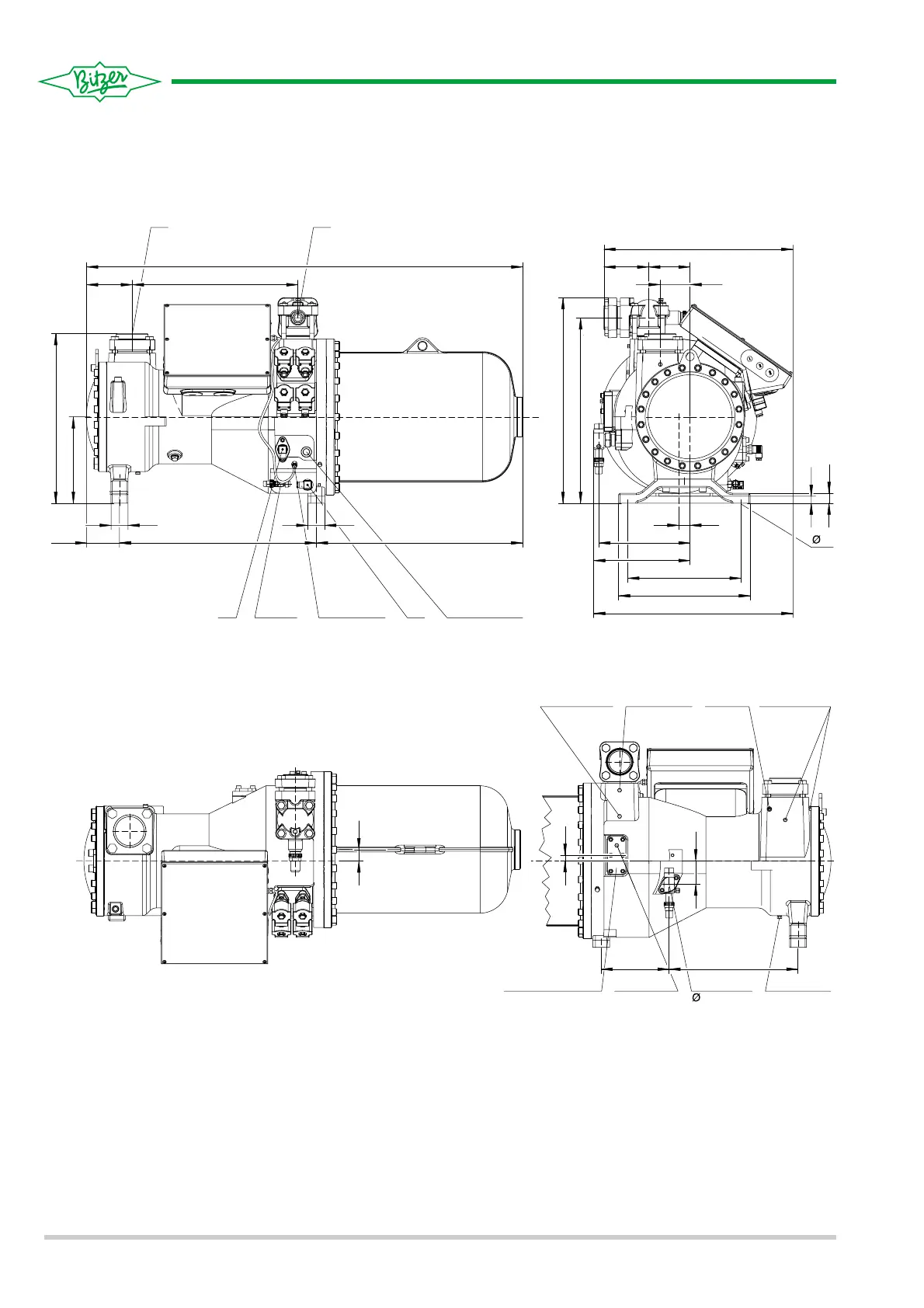
Dibujo acotadoDimensional drawingMaßzeichnung
CSH85
18
Anschluss-Positionen siehe Seite 19 Connection positions see page 19 Posiciones de conexión véase página 19
SP-171-3 E

Related product manuals