EasyManua.ls Logo

Bitzer CSH8573-140 - Mounting

Bitzer CSH8573-140
124 pages
Go to English
To Next Page IconTo Next Page
To Next Page IconTo Next Page
To Previous Page IconTo Previous Page
To Previous Page IconTo Previous Page
Loading...
SB-170-1050
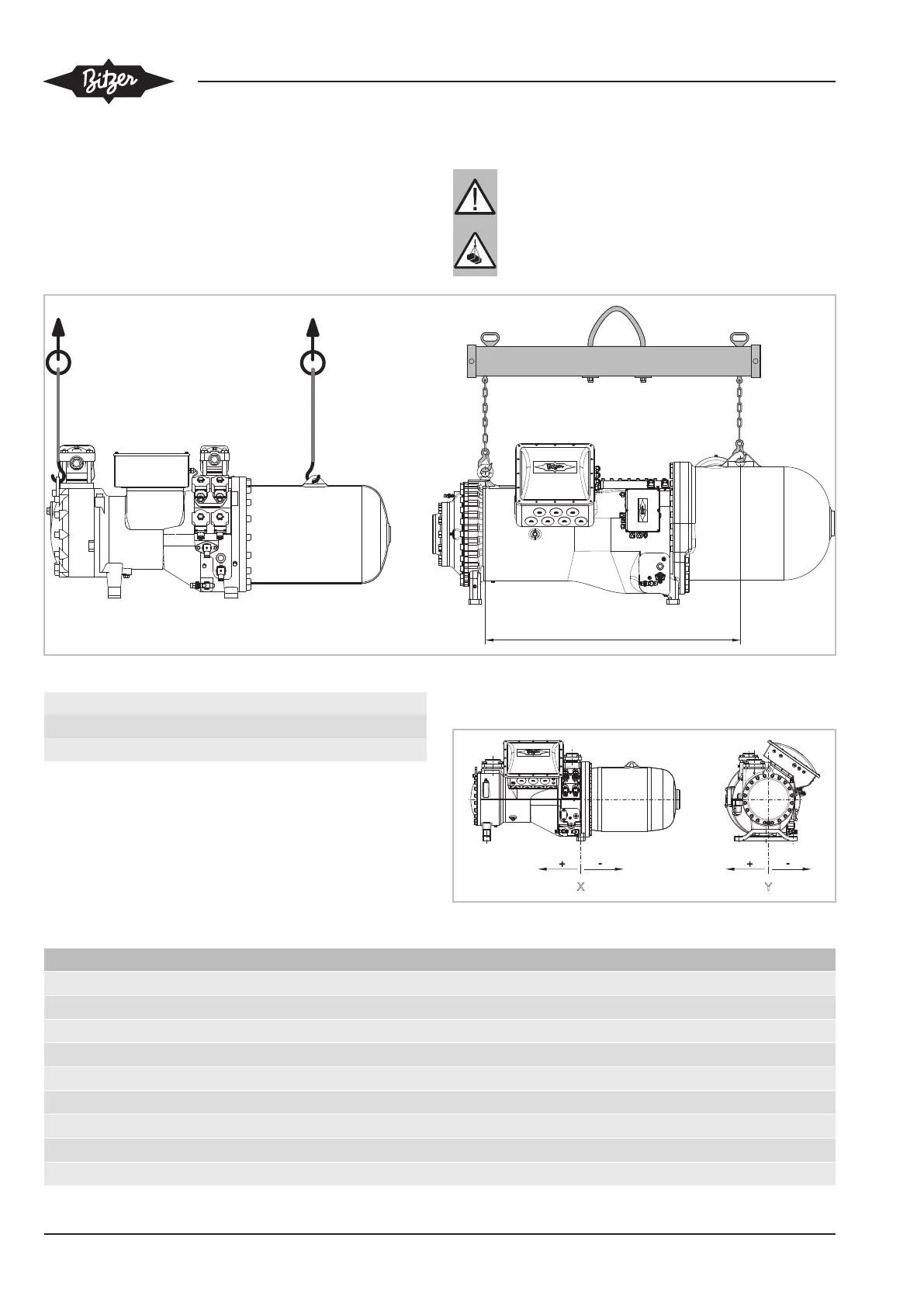
5 Mounting
5.1 Transporting the compressor
Transport the compressor screwed onto the pallet or lift
it using the lifting eyes. Lift CS.9. and CS.105 with a lift-
ing beam only, see figure 1, page 50.
Weight 1200..1900 kg (depending on the model)
DANGER
Suspended load!
Do not step under the machine!
X
Fig.1: Lifting the compressor. Left CS.6. .. CS.8., right CS.9. and CS.105
X (mm)
CS.9. 1150
CS.105 1448
5.1.1 Centres of gravity and weights
X Y
Fig.2: Centres of gravity using the example of the CSH85
CSH compressors Weight (kg) Centre of gravity X (mm) Centre of gravity Y (mm)
CSH6553-35Y 314 89 22
CSH6553-50(Y) 322 100 22
CSH6563-40Y 314 107 22
CSH6563-60(Y) 322 120 22
CSH6583-50Y 365 39 22
CSH6593-60(Y) 365 46 22
CSK6153-50 322 100 22
CSK6163-60 322 120 22
CSH7553-50Y 500 95 25

Table of Contents

Related product manuals