EasyManua.ls Logo

Bosch 830 ES - Page 29

Bosch 830 ES
80 pages
Print Icon
To Next Page IconTo Next Page
To Next Page IconTo Next Page
To Previous Page IconTo Previous Page
To Previous Page IconTo Previous Page
Loading...
Installation instructions
29
830 ES – 6 720 644 936 (2021/08)
Solution Two
If the required clearances of the Zflex termination hood cannot
be met, the Zflex damper is the preferred alternative (see
fig. 24).
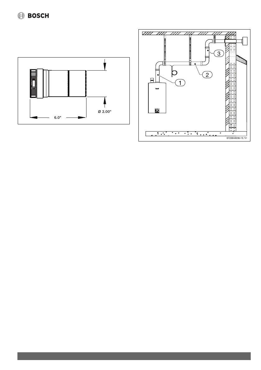
Fig. 24 Part nr. 2ZVBP03 for 3" venting
Part nr. 2ZVBP04 for 4" venting
Installation
For this solution to be effective, the internal flapper must be
100% closed when the water heater is not running. Refer to
figures 25 and 26 for preferred installation positions in the
vent system.
If using the Zflex damper:
Ensure directional arrow on damper label faces in the same
direction as exhaust flow.
If installed horizontally, the axis must be horizontal or
slightly pitched up towards termination to ensure damper
closes 100% when heater is not running.
To allow accessibility, damper must not be installed in an
enclosed section of vent pipe.
Do not install damper in unconditioned spaces (e.g. attics)
Condensation can build up while the heater is running
which can later freeze and potentially block the flapper
Fig. 25 Combustion air piping not shown for clarity purposes
[1] Good
[2] Better
[3] Best
6720608542-08.1V

Table of Contents

Other manuals for Bosch 830 ES

Related product manuals