EasyManua.ls Logo

Bosch 830 ES - Page 28

Bosch 830 ES
80 pages
Print Icon
To Next Page IconTo Next Page
To Next Page IconTo Next Page
To Previous Page IconTo Previous Page
To Previous Page IconTo Previous Page
Loading...
Installation instructions
830 ES – 6 720 644 936 (2021/08)
28
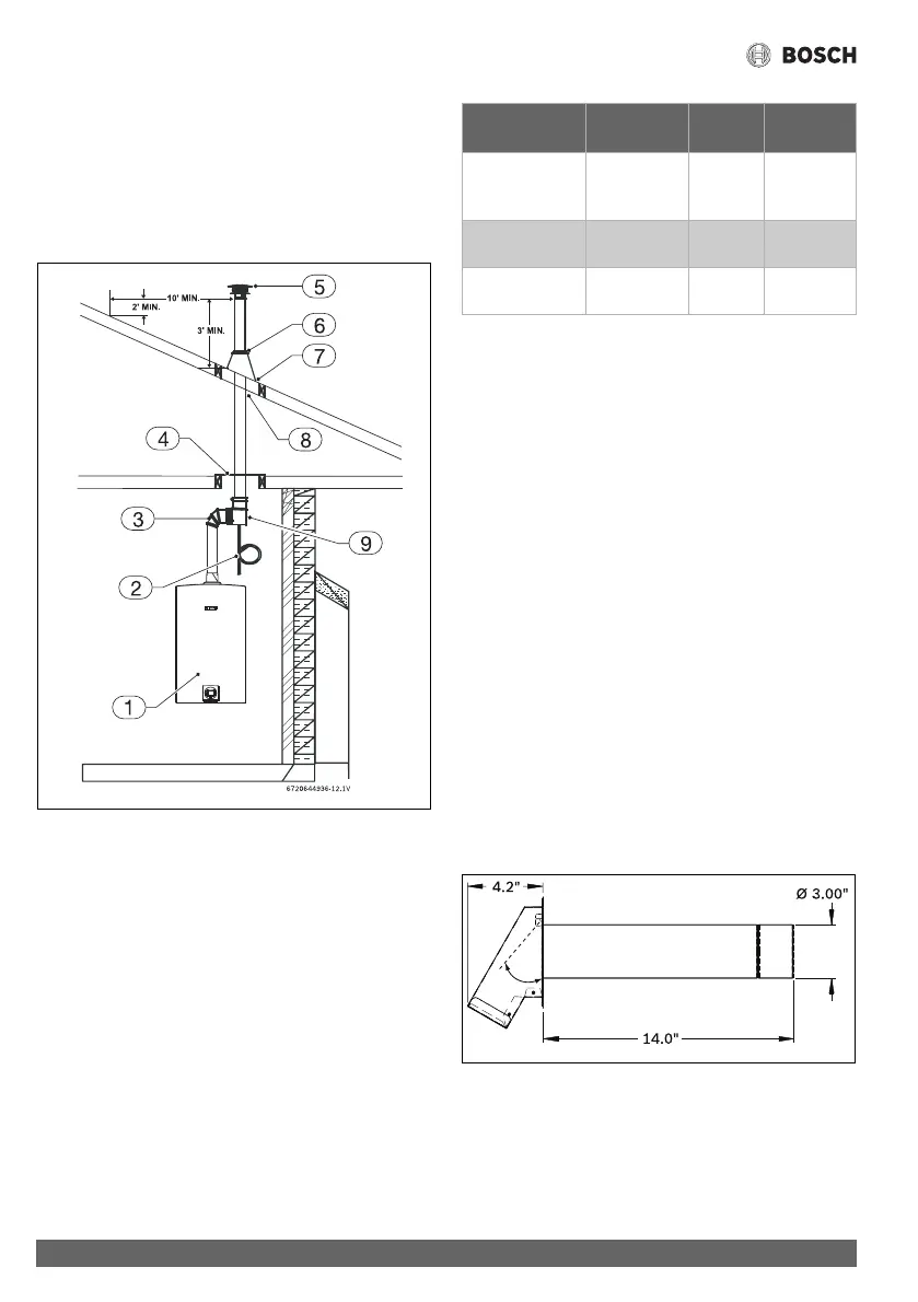
1. Install condensate drain on a horizontal section of the
exhaust pipe as close to the heater as possible.
2. The condensate must be disposed of according to local
codes.
3. To install condensate drain in vent system, use PVC 3" X
3" X 1.5" tee (part# 196278) and reduce for drain
connection.
Fig. 22 External condensate drain installation (combustion
air piping not shown)
[1] Appliance
[2] Condensate drain trap
[3] Elbow
[4] Firestop support
[5] Rain cap
[6] Storm collar
[7] Flashing
[8] 4" minimum air space
[9] Condensate drain Tee
Table 21 Approved Condensate Drain Part Numbers
4.3.6 Freeze prevention
In cold climates, components of a tankless water heater can
freeze and burst from negative draft. A leading cause of
negative draft is combustion appliances in the building not
being supplied with sufficient combustion air. A wood stove or
furnace can pull its combustion air from the water heater‘s vent
pipe, allowing the cold incoming air to freeze the cold water in
the heat exchanger. Supplying more combustion air for all
combustion appliances is the solution. A HVAC specialist
should be consulted to design solutions for providing more
combustion air.
Listed below is an additional measure designed to further limit
backdraft in extreme conditions assuming all other possible
causes have been addressed.
Solution One
The Z-flex vent termination hood is the preferred option for
limiting backdraft under the following conditions (see fig. 23):
The vent hood is only to be used in the exhaust vent piping.
The vent hood can only be used for horizontal terminations.
The vent hood is able to meet the required clearances
outlined in the venting section of the water heater‘s
installation manual.
Fig. 23 Part nr. 2SVSHTD03 for 3" venting
Part nr. 2SVSHTD04 for 4" venting
3" Venting Z-flex ProTech Heat Fab
90°
Condensate Drain
Tee
2SVEVWCF03 FST3 &
FSDF3
93PPLSTEE
Horizontal
Condensate Drain
2SVEDWCF03 FSHDT3 9321
Condensate Drain
Tube
2SVEDTK24 N/A 7000TUBE
6720608542-07.1V

Table of Contents

Other manuals for Bosch 830 ES

Related product manuals