EasyManua.ls Logo

Bosch EP015 - Page 34

Bosch EP015
40 pages
Print Icon
To Next Page IconTo Next Page
To Next Page IconTo Next Page
To Previous Page IconTo Previous Page
To Previous Page IconTo Previous Page
Loading...
34
EP Series
Subject to change without prior notice Revised 12-13
8733922168
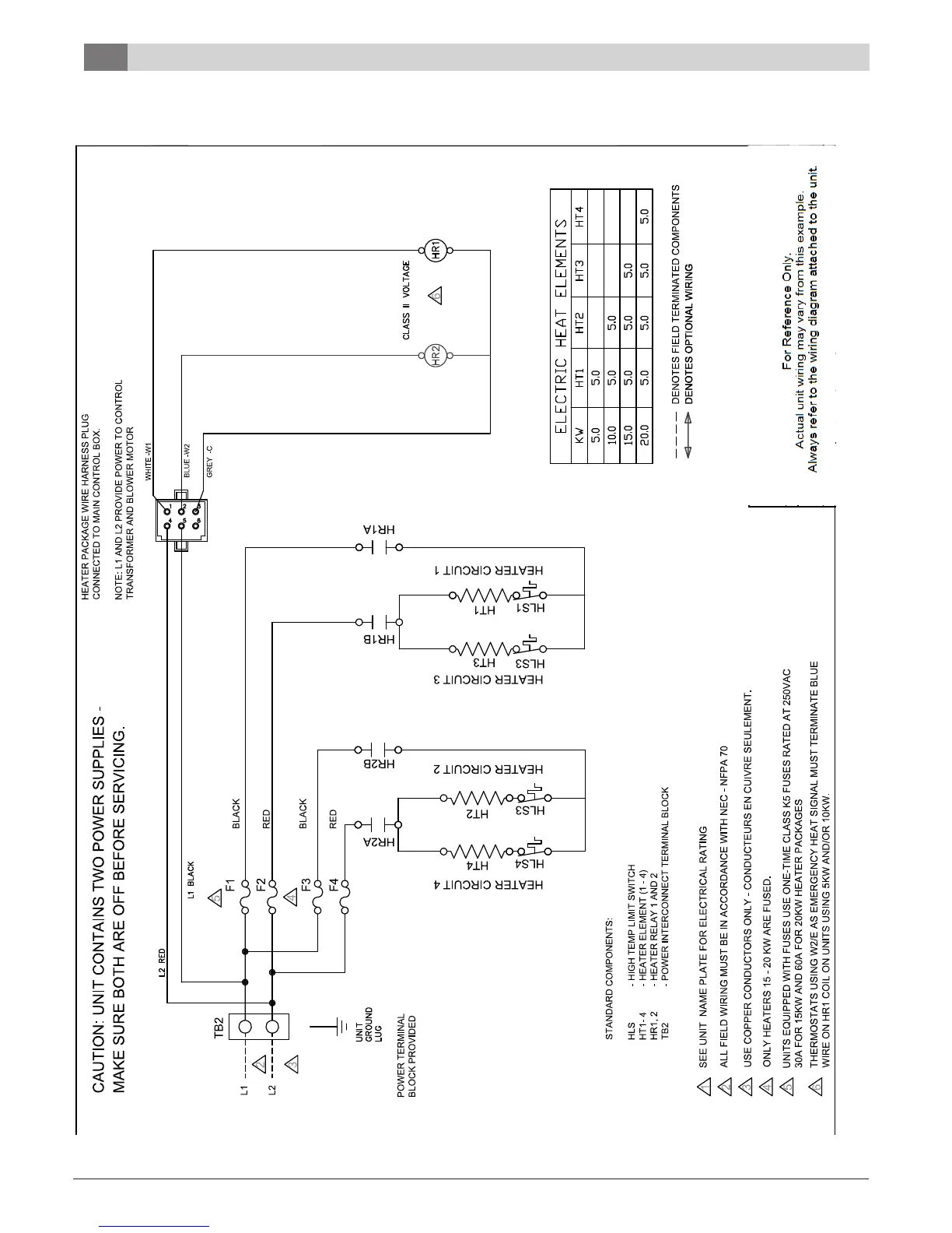
Electric Heat Wiring Diagram

Related product manuals