EasyManua.ls Logo

Bosch Integra 500 - Page 16

Bosch Integra 500
64 pages
Print Icon
To Next Page IconTo Next Page
To Next Page IconTo Next Page
To Previous Page IconTo Previous Page
To Previous Page IconTo Previous Page
Loading...
6 720 680 226
16
Installation instructions
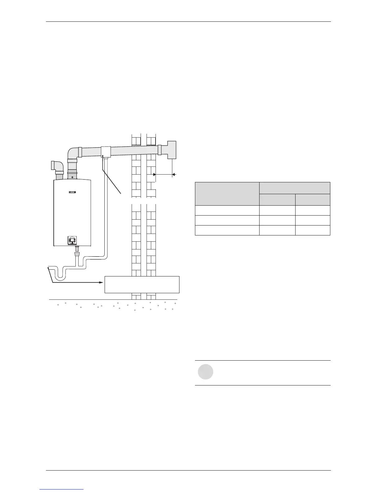
External condensate drain installation
If an external condensate drain (installer supplied) must
be installed (Section 3.3.2), the following is
recommended:
1. Install condensate drain on a horizontal section of
the exhaust pipe as close to the heater as possible.
2. The condensate must be disposed of according to
local codes.
3. To install condensate drain in vent system, use
PVC 3" X 3" X 1.5" tee (part# 196278) and reduce
for drain connection.
Fig. 18 External condensate drain installation
3.3.6 Fan speed adjustment
! IMPORTANT INFORMATION:
Natural gas heaters with installation altitudes
below 2,000 ft above sea level disregard this
section.
Installation adjustment:
After installing the tankless water heater, the fan speed
values for minimum power (P2) and maximum power
(P1) may need adjustment due to variations in altitude
and vent pipe length. Failure to make necessary
adjustments to fan speed values may result in improper
operation of the appliance.
First calculate the total equivalent vent length. Use this
value to determine the appropriate fan speed values
found in table 12 and make any necessary adjustments.
After changing fan speed values, proceed to section
6.5
to confirm CO
2
values are within specifed ranges.
Total vent length calculation
Note: See table 5 for maximum vent lengths.
B Determine the total length of all straight sections of
vent pipe and enter in table 10, line 1.
B Count the number of 90° elbows used, multiply by 5,
and enter that value in line 2. (Do not count 90°
elbows used as terminations on intake and
exhaust piping.)
B Count the number of 45° elbows used, multiply by 3,
and enter that value in line 3.
B Repeat steps 1 through 3 for air intake pipe and enter
those values in the intake section of table 10.
B Add line 4 from Exhaust to line 4 of Intake and enter
result in line 5.
This is the total equivalent vent length.
6720608836-09.2AL
Dispose of condensate in
accordance with local codes
4” Min.
Condensate drain
Fittings or Piping Equivalent
feet m
45 degree elbow 3 0.91
90 degree elbow 5 1.52
plastic pipe per foot 1 0.30
Table 9 Friction Loss Equivalent in piping and fittings
i
Note: If using concentric terminal include
pipe length that is part of the concentric
terminal.

Related product manuals