EasyManua.ls Logo

Bosch SV007 - Page 49

Bosch SV007
56 pages
Print Icon
To Next Page IconTo Next Page
To Next Page IconTo Next Page
To Previous Page IconTo Previous Page
To Previous Page IconTo Previous Page
Loading...
| 49Revised 08/14
8 733 914 818 (2014/08)SV Heat Pump Series
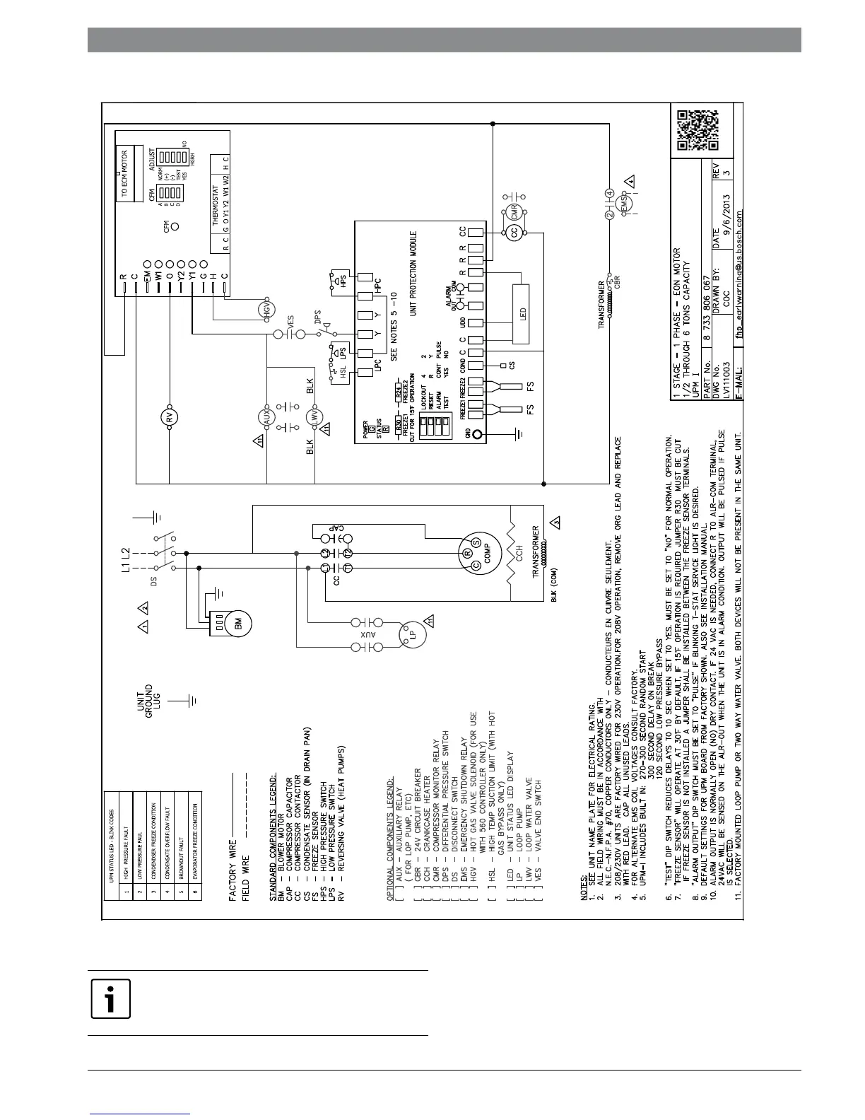
Figure # 18 1 Stage- Phase- EON Motor.
NOTE: FOR REFERENCE ONLY Actual unit
wiring may vary from this example. Always refer
to the wiring diagram attached to the unit.

Table of Contents

Related product manuals