EasyManua.ls Logo

Bosch W11P - Dimensions; Appliance Design

Bosch W11P
8 pages
Print Icon
To Next Page IconTo Next Page
To Next Page IconTo Next Page
To Previous Page IconTo Previous Page
To Previous Page IconTo Previous Page
Loading...
36 720 607 526
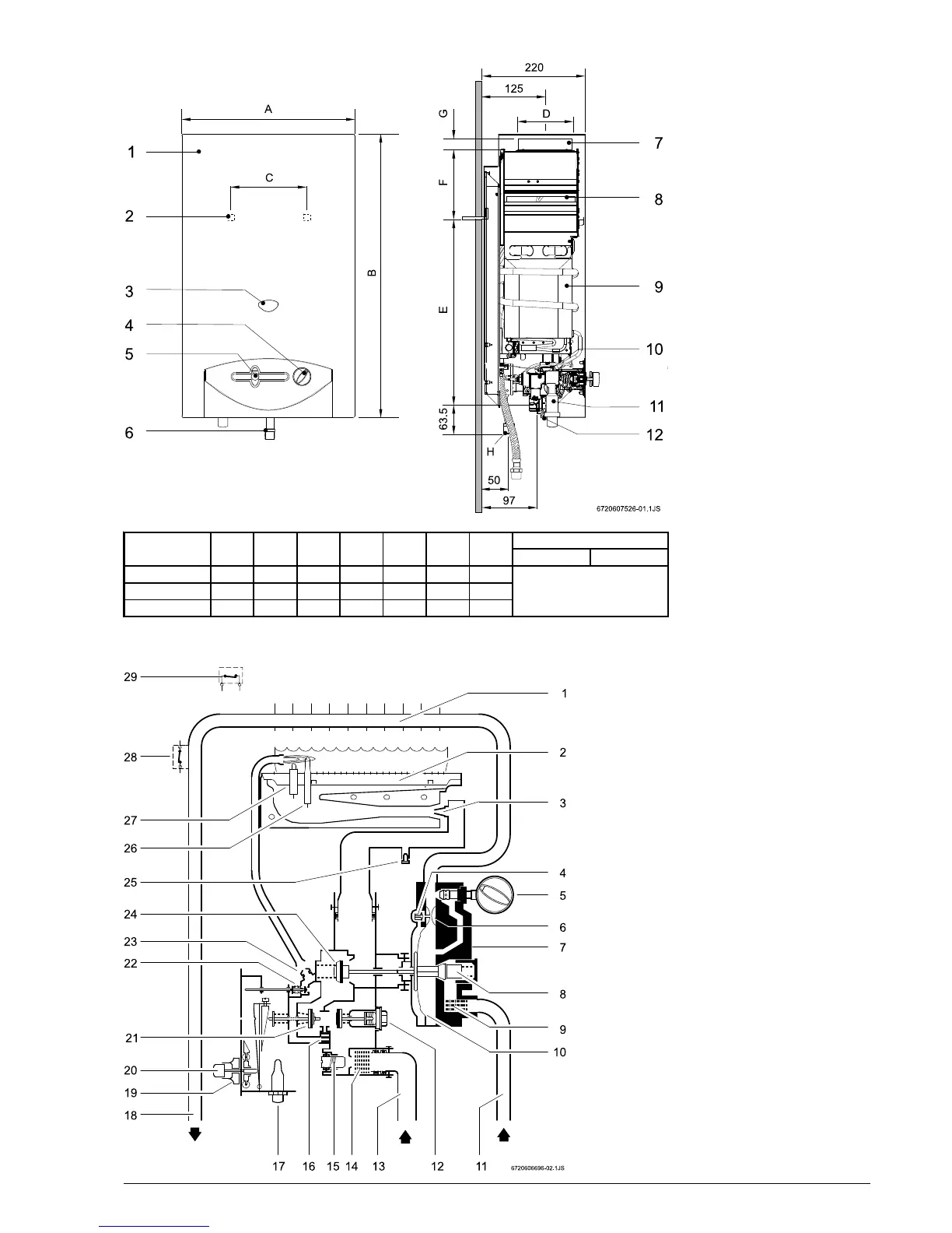
1.4 Dimensions
Fig. 2
Fig. 3
1. Front cover
2. Hole for fixing to wall
3. Observation window
4. Temperature control
5. Output control
6. Gas connection
7. Exhaust pipe union
8. Draught diverter with flue gas
monitor
9. Heat exchanger
10. Automatic gas valve
11. Piezo
12. Water valve
1. Heat exchanger
2. Main burner
3. Injector
4. Slow ignition valve
5. Temperature control
6. Venturi
7. Water valve
8. Water throttle
9. Water filter
10. Membrane
11. Cold water pipe
12. Magnetic valve
13. Gas supply pipe
14. Gas filter
15. Regulating screw
16. Pilot filter
17. Piezo
18. Hot water pipe
19. Output control
20. Igniter button
21. Main gas valve
22. Gas valve for pilot burner
23. Pilot burner injector
24. Gas valve
25. Jet pressure testing point
26. Thermocouple
27. Igniter electrode
28. Temperature limiter
29. Flue gas safety device
1.5 Appliance design
Dimensions
A B C D E F G H (Ø)
(mm) Natural Gas LPG
W11..P...
310 580 228 112,5 463 60 25
W14..P...
350 655 228 132,5 510 95 30
W18..P...
425 655 334 132,5 540 65 30
1/2"

Related product manuals