EasyManua.ls Logo

BÖWE P 300 - Page 30

Default Icon
50 pages
Print Icon
To Next Page IconTo Next Page
To Next Page IconTo Next Page
To Previous Page IconTo Previous Page
To Previous Page IconTo Previous Page
Loading...
27
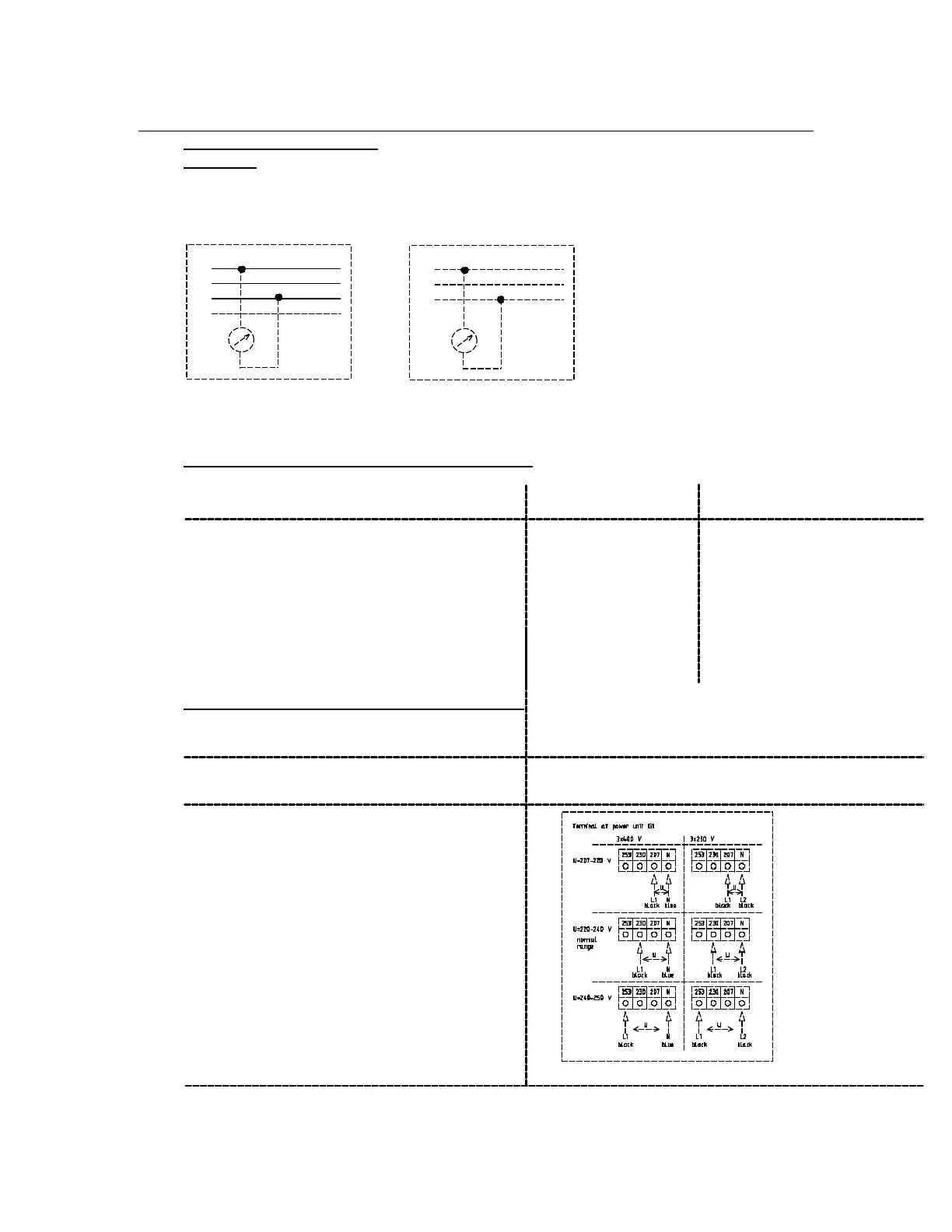
7. Connection
Allowed voltage range
Attention:
Before switching on the machine the power supply at the machine must be measured.
If power supply divates from the international standard, an autotransformer has to be
installed.
At the electrical connection of the dry-cleaning machine the following voltage ranges must be
observed.
1. Main supply (according to DIN IEC 38):
Range primarily 400 V mains primarily 230 V mains
not allowed; external adjustment necessary < 360 V < 207 V
normal range
MIN: - 10,0 % 360 V to 424 V 207 V to 244 V
MAX: + 6,0 %
not allowed; external adjustment necessary > 424 V > 244 V
2. Computer control with power supply:
Range Primarily 230 V - mains
not allowed; external adjustment necessary < 207 V
normal range 207 V - 244 V
703904-18-0
not allowed; external adjustment necessary > 244 V
L1
L2
L3
N
U
3x400V
L1
L2
L3
U
3x230V

Related product manuals