EasyManua.ls Logo

Bryant 394U - Venting Arrangement for Multiple Units

Bryant 394U
18 pages
Print Icon
To Next Page IconTo Next Page
To Next Page IconTo Next Page
To Previous Page IconTo Previous Page
To Previous Page IconTo Previous Page
Loading...
STD.
394/394H
115
v
TWINNING
-
'MOTOR
SIZES
UP
TO
1/3
HP./
FURNACE
NO.1
:
822
FAN
RELAYS
(WITH
FURNACES)
τιδν
ΤΟ
FURNACE
TO
FURNACE
:
TRANSFORMER
TRANSFORMER
T
STAT.
HEAT
zt
ANTICIPATOR
SET|
-
X
FOR
AMP
DRAWC
|CONTROL
RELAY
|.
SIDE
VIEW
STD.
394/394H
230V
TWINNING
MOTOR
SIZES
UP
ΤΟ
Z/4
H.P./
FURNACE
NO.
1
822
FAN
RELAYS
(WITH
FURNACES)
ΠΝ
TO
FURNACE
|
TO
FURNACE
TRANSFORMER
TRANSFORMER
.
FURNACE
LOW
SPACE
SIZE
250
(TWO
12519).
4"
APART
TO
PROVIDE
SPACE
FOR
GAS
PIPING.
SPACE
300
(TWO
7250's)
1"
APART
TO
PERMIT
EXPANSION
AND
CONTRACTION
FRONT
VIEW
SIZE
Free
ΓΗ
CAP
PIPE
em
PIE
jx
p
iik
—*—
Iw:
DCS
5]
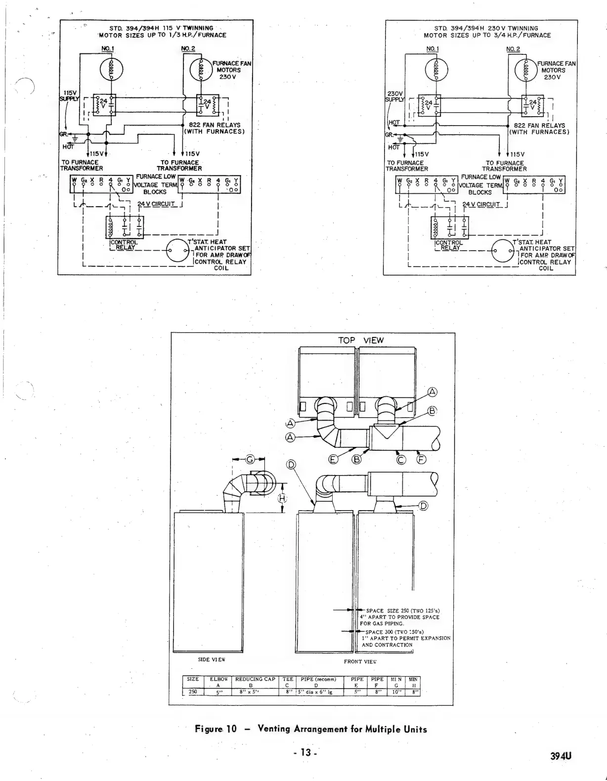
Figure
10
--
Venting
Árrangement
for
Multiple
Units
-13-
|
3940

Other manuals for Bryant 394U

Related product manuals