EasyManua.ls Logo

Bryant 581A/B - Typical Wiring Schematics

Bryant 581A/B
268 pages
Print Icon
To Next Page IconTo Next Page
To Next Page IconTo Next Page
To Previous Page IconTo Previous Page
To Previous Page IconTo Previous Page
Loading...
135
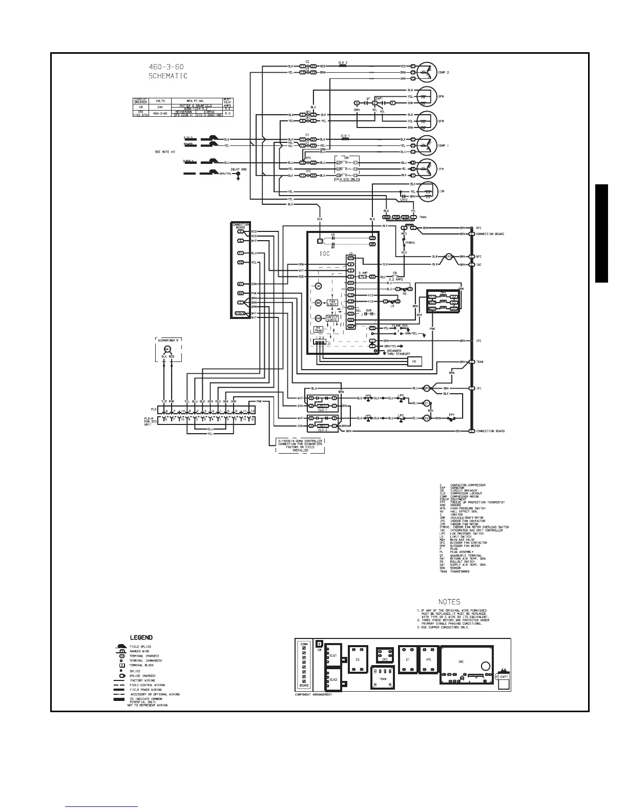
TYPICAL WIRING SCHEMATICS — 581B
SIZES 036-150 (581B090, 460-3-60 Shown)
a48-8233
581B036-150

Related product manuals