EasyManua.ls Logo

Bryant 581A/B - Accessory Dimensions

Bryant 581A/B
268 pages
Print Icon
To Next Page IconTo Next Page
To Next Page IconTo Next Page
To Previous Page IconTo Previous Page
To Previous Page IconTo Previous Page
Loading...
30
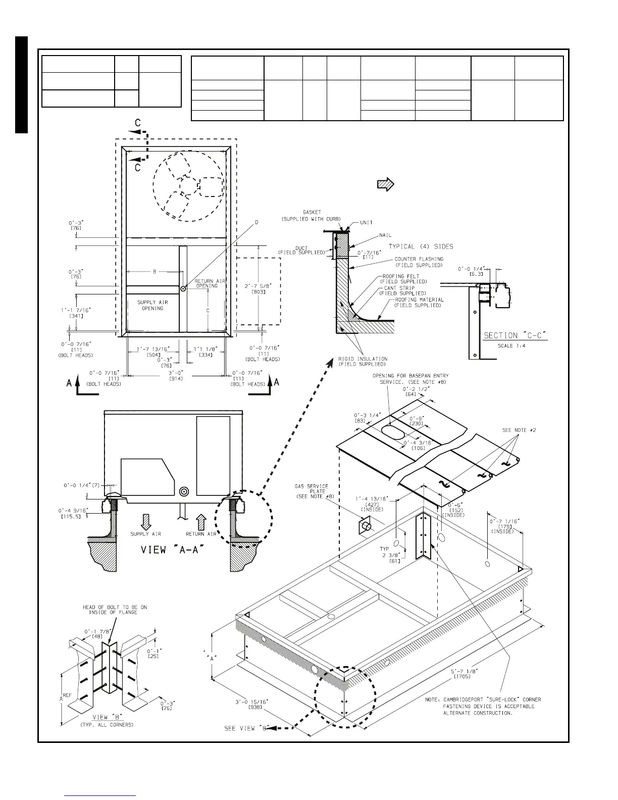
ACCESSORY DIMENSIONS — 580F
ROOF CURB
ACCESSORY
A UNIT SIZE
CRRFCURB001A01
1 -2
[356]
580F
036-073
CRRFCURB002A01
2 -0
[610]
NOTES:
1. Roof curb accessory is shipped disassembled.
2. Insulated panels.
3. Dimensions in [ ] are in millimeters.
4. Roof curb, galvanized steel.
5. Attach ductwork to curb (flanges of duct rest on curb).
6. Service clearance: 4 ft on each side.
7. Direction of airflow.
8. Connector packages CRBTMPWR001A01 and 2A01 are for
thru-the-curb type gas. Packages CRBTMPWR003A01 and
4A01 are for thru-the-bottom type gas connections.
CONNECTOR
PKG. ACCY.
BC
D ALT
DRAIN
HOLE
GAS POWER CONTROL
ACCESSORY
POWER
CRBTMPWR001A01
1 -9
11
/
16
[551]
1 -4
[406]
1
3
/
4
[44.5]
3
/
4
[19] NPT
3
/
4
[19] NPT
1
/
2
[12.7]
NPT
1
/
2
[12.7]
NPT
CRBTMPWR002A01 1
1
/
4
[31.7]
CRBTMPWR003A01
1
/
2
[12.7] NPT
3
/
4
[19] NPT
CRBTMPWR004A01
3
/
4
[19] NPT 1
1
/
4
[31.7]
a48-7317
Roof Curb
580F036-151

Related product manuals