EasyManua.ls Logo

Bryant 581A/B - Page 146

Bryant 581A/B
268 pages
Print Icon
To Next Page IconTo Next Page
To Next Page IconTo Next Page
To Previous Page IconTo Previous Page
To Previous Page IconTo Previous Page
Loading...
146
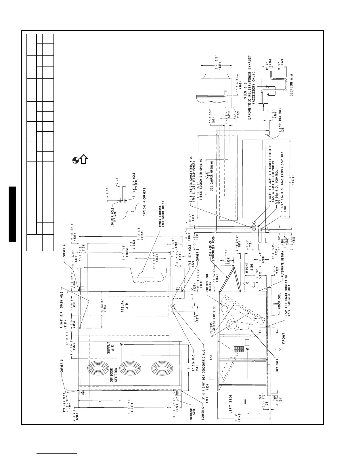
BASE UNIT DIMENSIONS — 579F180,216
NOTES:
1. Refer to print for roof curb accessory dimensions.
2. Dimensions in ( ) are in millimeters.
3. Center of Gravity.
4. Direction of airflow.
5. Ductwork to be attached to accessory roof curb only.
6. Minimum clearance:
•Rear: 7 -0 (2134) for coil removal. This dimension can be reduced to
4 -0 (1219) if conditions permit coil removal from the top.
•4 -0 (1219) to combustible surfaces, all four sides (includes between
units).
Left side: 4 -0 (1219) for proper condenser coil airflow.
Front: 4 -0 (1219) for control box access.
Right side: 4 -0 (1219) for proper operation of damper and power
exhaust if so equipped.
•Top: 6 -0 (1829) to assure proper condenser fan operation.
Bottom: 14 (356) to combustible surfaces (when not using curb).
Control box side: 3 -0 (914) to ungrounded surfaces, non-combustible.
Control box side: 3 -6 (1067) to block or concrete walls, or other
grounded surfaces.
Local codes or jurisdiction may prevail.
7. With the exception of clearance for the condenser coil and the damper/
power exhaust as stated in Note #6, a removable fence or barricade
requires no clearance.
8. Dimensions are from outside of corner post. Allow 0 -
5
/
16
(8) on each
side for top cover drip edge.
9. See drawing 50TJ500352 for service option details.
UNIT
579F
STD UNIT
WEIGHT
ECONOMIZER
WEIGHT
CORNER
A
CORNER
B
CORNER
C
CORNER
D
DIM A DIM B DIM C
Lb Kg Lb Kg Lb Kg Lb Kg Lb Kg Lb Kg ft-in. mm ft-in. mm ft-in. mm
180 1650 748 90 41 423 192 386 175 403 183 438 199 3-5 1041 3-5 1041 1-10 559
216 1800 816 90 41 432 196 410 186 461 209 472 214 3-3 991 3-7 1092 1-8 508
a48-7338
0TFQ004-012
579F180-300

Related product manuals