EasyManua.ls Logo

Bryant 581A/B - Page 205

Bryant 581A/B
268 pages
Print Icon
To Next Page IconTo Next Page
To Next Page IconTo Next Page
To Previous Page IconTo Previous Page
To Previous Page IconTo Previous Page
Loading...
205
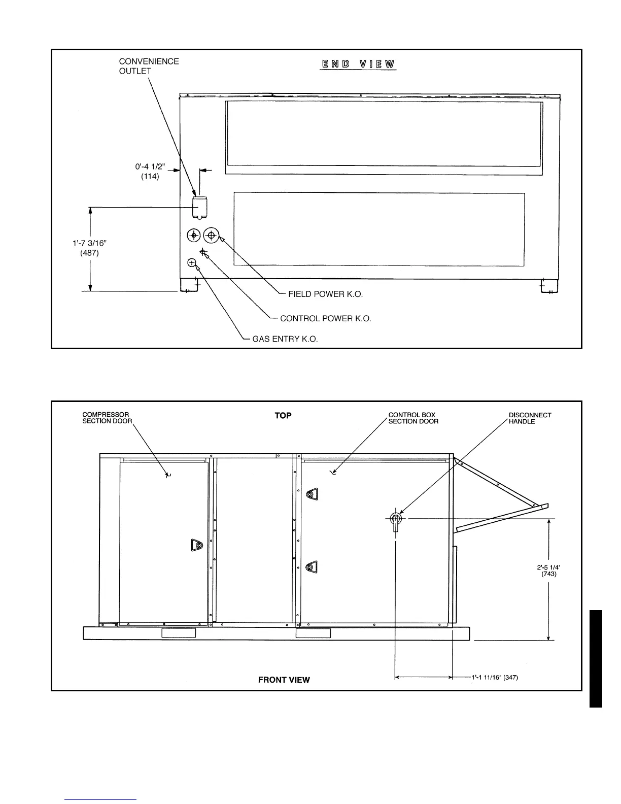
ACCESSORY DIMENSIONS (cont)
Factory-Installed Convenience Outlet
Factory-Installed Non-Fused Disconnect
a48-4184
a48-6126
581A155-300

Related product manuals